老城根雍锦里【西安租售中心】-地铁沿线-装修效果图 -商圈热盘-户型图
扫描到手机,新闻随时看
扫一扫,用手机看文章
更加方便分享给朋友
西安「老城根雍锦里」
售楼处:029-68866626(营销中心)
售楼部地址:029-68866626(致电发送详情地址)
如需了解最新房源信息_在售房源价格_请拨打上方售楼部电话!

基本信息
楼盘名称:老城根·雍锦里 在售
绿化率35%
规划户数467户
楼盘特点:一房一价 二环内 地铁沿线 商圈热盘 知名开发商
参考价格:17000元/m²
物业类型:住宅
开发商:陕西昇凯捷盛房地产开发有限公司
区域位置:二环内- 莲湖区- 星火路
楼盘地址:星火路与大兴东路十字西北角
【繁华焕新:老城根G park潮流峯标】
·西安时尚潮流首席商圈
规模大:西安首个公园式商业娱乐大道、占地291.79亩,西安文商娱潮流中芯;
业态全:集餐饮、娱乐、休闲、购物、商务、文化、观光于一体,不止是潮流商业,更是目的地型微度假社交场所;
体验新:欢乐广场、水舞广场、水晶广场、悬浮天幕,街区式体验。

·潮玩圣地:别人的追逐,不过是你的生活
西北旗舰店/首店聚集地:
迪奥、Coach、MK、%、等
各大品牌聚合场:盒马/方所书店/开顿影城/海底捞等
品质餐饮先享区:眉州东坡、老铺烤鸭、仟滕日料、靓靓蒸虾、薇酌饮、倾城瘾食等

【城市焕新:老城根TOD大城规划】
老城根集团约187亩TOD大城耕新主城。以标杆商业+改善人居,重塑城市格局,造极理想生活图景。
·主城耕新第一篇章:繁华启序
老城根G park
千年文脉与世界风潮碰撞融合,造就时尚生活集合体。更新老城面貌,焕新生活方式,引领时代潮流,让西安重新认识城西,让世界重新瞩目西安。

·主城耕新第二篇章:世家典藏
老城根·雍锦世家
城根下世府家,老城根主城耕新改善力作,为当代世家阶层打造繁华芯的隐贵生活主场,城市人居地标即将美好呈现。

·主城耕新第三篇章:改善登峰
老城根·雍锦里
老城根匠心迭代之作,社区规制升维,产品价值登峰。以建面约135-180㎡改善终藏,为时代重构兼容繁华与静谧的森境生活,和鸣时代的主城向往。

三境私域园庭:曲径森境 礼序树阵
以多重树阵为入户主景,层层珍植与艺术装饰相映成趣,仿若一片茂然森域的微光入口,两侧银杏、国槐等列阵树阵,造极归家仪式感。迈入门庭门廊,开启一段森境自然游览之旅。

·以园造景 森氧五园艺境绿洲
森境叠水流瀑园
水韵相映,自然声声入耳,区隔内外空间。让自然、艺术、生命力与社区完美相融,给予生活无限美好。

森栖谧语会客园
近享绿意,密语自然,感受森境园林开放、融合的生命力,让居者的社交与品味在潜移默化间生长。

森间童趣游乐园
森间亲子活动空间,让童趣回归野趣,在探索自然中成长,时刻感受森系社区蓬勃向上的力量。

森氧生命律动园
将健身场所置于开放的自然环境中,晨起舒动鲜氧,傍晚悠游养心,在生命与自然的融合中,悦享健康人生。

森系自然植物园
选取如丛生乌桕、丛生五角枫、丛生朴树、美国红枫、北美海棠、国槐、桂花、榉树、银杏等适宜西安本土生长的25种大小乔木珍植,通过设计搭配,营造时时有绿、处处皆景,自然与人文共生长的城芯私享植物园。

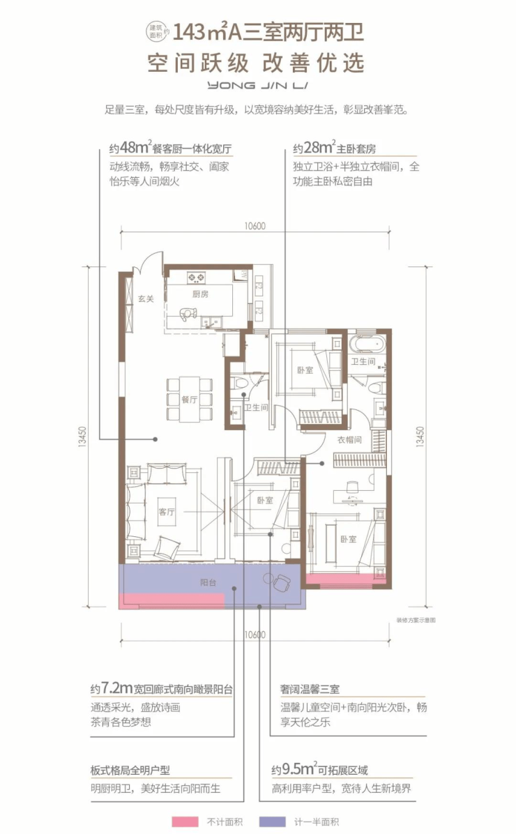
户型展示:



【老城根雍锦里】售楼处TEL:029-68866626【售楼中心】
了解最新优惠折扣价格——请拨打售楼处
声明:本文由入驻焦点开放平台的作者撰写,除焦点官方账号外,观点仅代表作者本人,不代表焦点立场。
