老城根雍锦里-2025租售中心-8号线轨交房-装修效果图-物业公司-知名开发商
扫描到手机,新闻随时看
扫一扫,用手机看文章
更加方便分享给朋友
西安「老城根雍锦里」
售楼处:029-68866626(营销中心)
售楼部地址:029-68866626(致电发送详情地址)
在售户型图丨项目详情介绍丨剩余房源丨项目周边配套丨详细在线解答

基本信息
绿化率: 35%
容积率: 4.50
占地面积: 15364㎡
建筑面积: 92783㎡
总户数: 467户
当期户数: 467户
车位比: 1:1.3
物业费: 2.2元/㎡·月
车位: 662
物业公司: 西安老城根物业管理服务有限公司
楼盘价格: 参考均价 17000 元/㎡ 周边房价解读
物业类型: 普通住宅
区域板块: 城西
产权年限: 70年
项目特色: 地铁沿线 改善好房
开发商: 陕西昇凯捷盛房地产开发有限公司
楼盘地址: 星火路与大兴东路十字西北角
【繁华焕新:老城根G park潮流峯标】
·西安时尚潮流首席商圈
规模大:西安首个公园式商业娱乐大道、占地291.79亩,西安文商娱潮流中芯;
业态全:集餐饮、娱乐、休闲、购物、商务、文化、观光于一体,不止是潮流商业,更是目的地型微度假社交场所;
体验新:欢乐广场、水舞广场、水晶广场、悬浮天幕,街区式体验。

·潮玩圣地:别人的追逐,不过是你的生活
西北旗舰店/首店聚集地:
迪奥、Coach、MK、%、等
各大品牌聚合场:盒马/方所书店/开顿影城/海底捞等
品质餐饮先享区:眉州东坡、老铺烤鸭、仟滕日料、靓靓蒸虾、薇酌饮、倾城瘾食等

【城市焕新:老城根TOD大城规划】
老城根集团约187亩TOD大城耕新主城。以标杆商业+改善人居,重塑城市格局,造极理想生活图景。
·主城耕新第一篇章:繁华启序
老城根G park
千年文脉与世界风潮碰撞融合,造就时尚生活集合体。更新老城面貌,焕新生活方式,引领时代潮流,让西安重新认识城西,让世界重新瞩目西安。

·主城耕新第二篇章:世家典藏
老城根·雍锦世家
城根下世府家,老城根主城耕新改善力作,为当代世家阶层打造繁华芯的隐贵生活主场,城市人居地标即将美好呈现。

·主城耕新第三篇章:改善登峰
老城根·雍锦里
老城根匠心迭代之作,社区规制升维,产品价值登峰。以建面约135-180㎡改善终藏,为时代重构兼容繁华与静谧的森境生活,和鸣时代的主城向往。

三境私域园庭:曲径森境 礼序树阵
以多重树阵为入户主景,层层珍植与艺术装饰相映成趣,仿若一片茂然森域的微光入口,两侧银杏、国槐等列阵树阵,造极归家仪式感。迈入门庭门廊,开启一段森境自然游览之旅。

·以园造景 森氧五园艺境绿洲
森境叠水流瀑园
水韵相映,自然声声入耳,区隔内外空间。让自然、艺术、生命力与社区完美相融,给予生活无限美好。

森栖谧语会客园
近享绿意,密语自然,感受森境园林开放、融合的生命力,让居者的社交与品味在潜移默化间生长。

森间童趣游乐园
森间亲子活动空间,让童趣回归野趣,在探索自然中成长,时刻感受森系社区蓬勃向上的力量。

森氧生命律动园
将健身场所置于开放的自然环境中,晨起舒动鲜氧,傍晚悠游养心,在生命与自然的融合中,悦享健康人生。

森系自然植物园
选取如丛生乌桕、丛生五角枫、丛生朴树、美国红枫、北美海棠、国槐、桂花、榉树、银杏等适宜西安本土生长的25种大小乔木珍植,通过设计搭配,营造时时有绿、处处皆景,自然与人文共生长的城芯私享植物园。

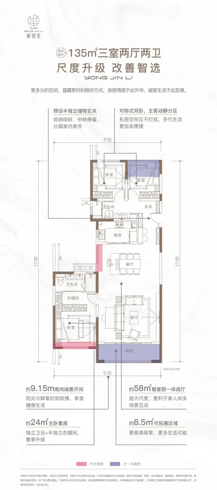
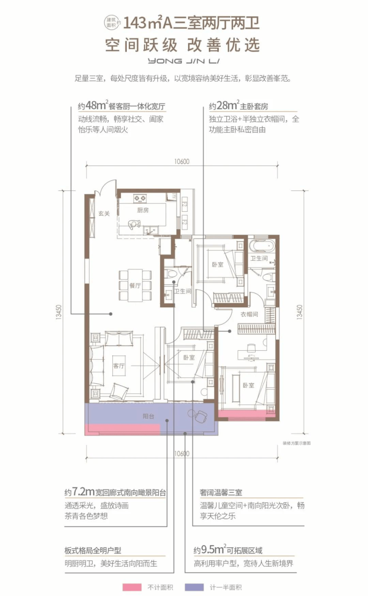
户型展示:



【老城根雍锦里】售楼处TEL:029-68866626【售楼中心】
了解最新优惠折扣价格——请拨打售楼处
声明:本文由入驻焦点开放平台的作者撰写,除焦点官方账号外,观点仅代表作者本人,不代表焦点立场。
