老城根雍锦里-2025租售中心-8号线轨交房-毛坯 -商圈热盘-户型图

搜狐焦点宝鸡站 2025-10-19 06:45:00
用手机看
扫描到手机,新闻随时看

扫一扫,用手机看文章
更加方便分享给朋友

老城根·雍锦里位于二环内,绿化率35%,规划467户,是西安稀缺城芯项目,承载历史与未来价值。

西安「老城根雍锦里」

售楼处:029-68866626(营销中心)

售楼部地址:029-68866626(致电发送详情地址)

基本信息

楼盘名称:老城根·雍锦里 在售

绿化率35%

规划户数467户

楼盘特点:一房一价 二环内 地铁沿线 商圈热盘 知名开发商

参考价格:17000元/m²

物业类型:住宅

开发商:陕西昇凯捷盛房地产开发有限公司

区域位置:二环内- 莲湖区- 星火路

楼盘地址:星火路与大兴东路十字西北角

【稀贵地脉】

承载主城生活向往 重构改善人居范本

·惟有城芯 浓缩一城精粹价值

依照城市规划理念中的“同心圆模式”,城市中心的土地价值最高,并按照均匀的半径向城市外围递减,城市中心是城市永恒不变的价值焦点。

北京主城国贸:中国对外开放窗口

上海主城徐家汇:上海十大商业中心之一

·城根源脉 千载一脉皇城贵土

“定鼎之基永固,无穷之业在斯”,1442年前,隋修建大兴城,城墙作为皇城根基屹立,自此划定千年西安格局与文明底色,凝结成老西安人的历史情结与自信,汇聚新西安人的主城向往,惟此,长安留名,城市留根。

·惟此城芯 稀缺限购价值恒久

西安版图拓疆,高新、西咸等新区可无限延展,惟有城墙边中芯土地不可复制,永恒向往。

楼市新政,二环内持续限购,土地价值一城认可,有限核芯资产注定引人抢藏。

西安2023年二批次土地出让计划,碑林、莲湖、新城主城三区供地相加,仅占总出让面积约3.54%(数据来源:西安楼市情报公众号),主城新地已近告罄,未来难有新盘供应,进驻主城机会越来越少。

【城根匠作

本土名企耕新城根 营造都会繁华谧境

【生活大师:老城根文化产业集团】

老城根文化产业集团,西安本土实力名企。在城墙根下孕育而生,致力于更新城市面貌,创造更有价值、更现代的都会生活空间,持续焕新主城生活方式。

会呼吸的质感建筑

东方元素融贯现代匠艺 筑就隐奢静谧的森质臻宅

【森感建筑:栖心雅宅美学封面】

·公建化外立面典范形制

中式横向肌理、超高窗墙比、“黄韵银律”等功能形制与建筑美学有机统一,阳光清风无界,采光视野扩容,以居所品质彰显身份认知。

·纯板式高阶建筑格局

270°瞰景视野、约8%-13%高赠送宽奢户型、层高、奢阔南向开间(除135㎡户型)、南北向通透对流,“会呼吸”的好房子。

【森质细节:雕琢细节精致生活】

·酒店式透景归家大堂

归家大堂以酒店式接待为蓝本,空间、材质及灯光多维度组合,内部枯山水与外部森氧园景对韵映照,艺术与生活完美融合,令到访者切身体验到归家的仪式感、自由感。

·地下车库精装双大堂

匠筑地库归家空间、休憩区,营造双入户大堂,连接住宅地上地下功能空间,凸显豪华与尊贵,高定生活从归家开始。

·精装电梯前室/走廊等公区

电梯前室/走廊等公区采用墙砖/地砖精装,营造品质归家氛围。一层透景玻璃,将景观引入室内,做到处处有景。

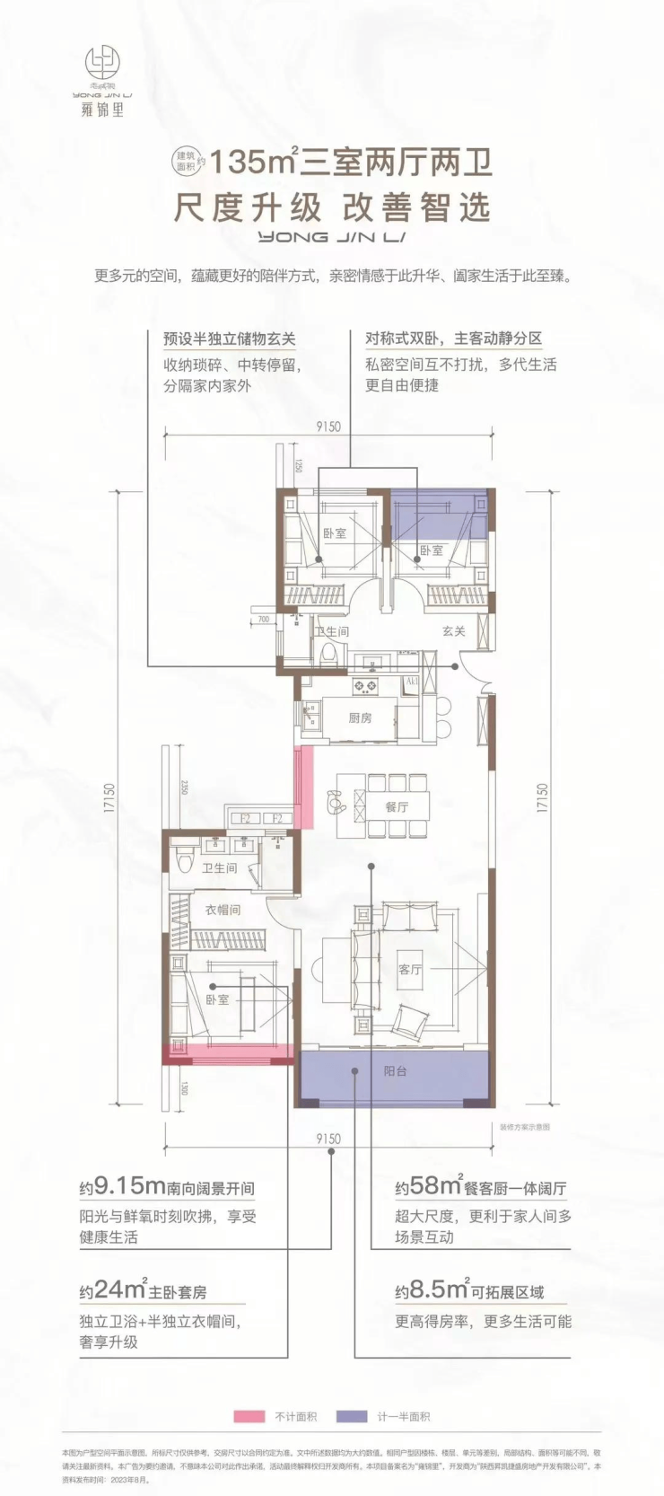
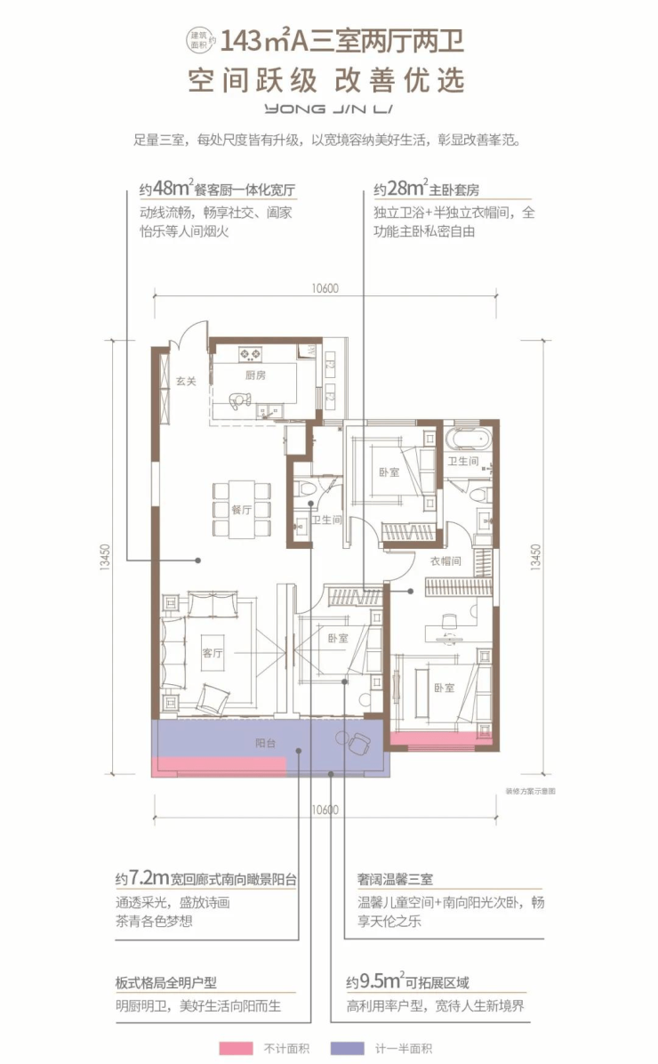
户型展示:

【老城根雍锦里】售楼处TEL:029-68866626【售楼中心】

了解最新优惠折扣价格——请拨打售楼处

声明:本文由入驻焦点开放平台的作者撰写,除焦点官方账号外,观点仅代表作者本人,不代表焦点立场。