铁建西派逸园_西安铁建西派逸园户型图_地址_铁建西派逸园价格_楼盘怎么样

搜狐焦点宝鸡站 2024-05-17 07:55:00
用手机看
扫描到手机,新闻随时看

扫一扫,用手机看文章
更加方便分享给朋友

西安【铁建西派逸园】位于繁华的三环及绕城高速旁,交通便利,临近三所中小学,幼儿园,购物中心和医院。社区环境优美,生活便利,是城市中的一片绿洲。

售楼处电话:029-68866626(营销中心)

户型图丨项目介绍丨房源丨_周边配套丨详细解答

售楼中心_欢迎来电咨询!预约尊享优惠折扣_匠心钜制恭迎品鉴!

如需了解最新房源信息_在售房源价格_请拨打上方售楼部电话!

温馨提示:看房需提前预约!

西安【铁建西派逸园 】基础信息

项目名称:中国铁建·西派逸园

建筑类型:高层、小高层

楼层总高:17层、23层、26层

装修标准:毛坯

容积率:2.5

绿化率:35.16%

面积:102㎡、120㎡、132㎡、143㎡、168㎡、顶跃

车位配比:1:1.57

总体规划:三期16栋

住宅热销楼栋:1# 、11# 、12#

本次加推:13#

交付时间:2025年6月底前

项目效果图

西安【铁建西派逸园 】配套资源

• 交通配套开启澎湃时速,同频大西安风华脉搏

项目近距三环及绕城高速,坐拥地铁1、6、9号线纺织城站,出行快人一步,距铁一院集团总部约9.3公里。

• 教育配套和你跃然向上,呵护下一代骄傲梦想

项目2.5公里范围现有中小学5所,小学有东城第二小学、东城第六小学(新建)、纺织城小学,中学有西安五十五中、西安滨河学校。其中西安滨河学校距项目直线距离约400米。小区自建一所约5400平方米幼儿园,全龄教育“邻”距离。

• 商业配套脚步丈量繁华,一站式精彩近在左右

举步即达华阳城、华东购物广场、灞柳风情街等区域商业中心,尽享潮流风尚;近距万达广场(规划)、大型商业中心(规划),自建社区配套商业,满足日常消费所需。

· 公园配套湿地滋养生命,唤醒生活的诗意

距灞河仅约200米,城市与自然在此共生,灞桥生态湿地公园、项目旁规划公园等四大公园环绕,尽享鲜氧美景与公园休闲。

• 医疗配套筑起健康防线,有“医”靠才能更安心

唐都医院、西安医学院第二附属医院等三级甲等医院在侧,更有西安市灞桥区人民医院等各级医疗机构,24小时护航家人健康。

• 社区南大门以筑山脉之形 叠连绵之姿,诠释极致尊贵的归家仪式社区南大门建筑形态源自山川与河流。理念自中国传统叠山理水之手法,建筑形体如山脉连绵错落之态;引中国传统四水归堂之法,聚自然之灵气,借崔振宽大师之手笔,融艺术之精华。

• 现代简约风格立面低辐射节能外窗,辅助横向腰线线条,搭配浅灰色真石漆、米白色质感涂料,营造出现代简约,气派典雅的立面质感

• 园林景观

【两环】【五大中心】【九花园】独特景观样式800米“生态运动环”和“中心休闲环”,为业主提供运动跑步和健身漫步的不同动线,完美解决了不同的的活动需求五中心分别为(林屿水镜、全龄活动、雅阅之庭,圈层客厅、璀璨绿洲)可用于休闲聊天娱乐;九大花园(疏影/解语/银硕/梦泽/槭语/沁馨/枫语/槐鼎/仲夏),不同植物主题,交相辉映,一步一景步步亦景。比如以海棠为主的解语花园、营造了色彩绚丽的春季花园景观。槐树、银杏、乌桕等名贵树种,打造四季有花,移步异景的景观体验

西安【铁建西派逸园 】户型鉴赏

• 【11#户型】一 143㎡

• 【1#户型】一 132㎡

• 【12#户型】— 120㎡

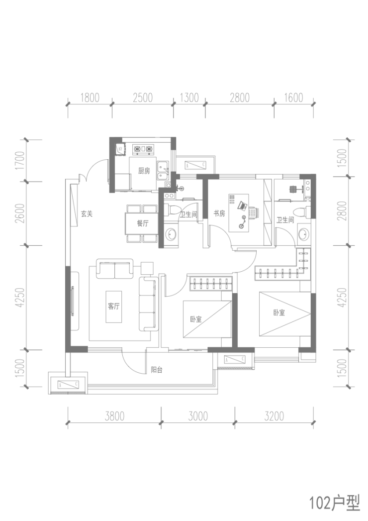
• 【12#户型】— 102㎡

项目样板间实景图

西安【铁建西派逸园 】售楼处电话:029-68866626 (已认证)

声明:本文由入驻焦点开放平台的作者撰写,除焦点官方账号外,观点仅代表作者本人,不代表焦点立场。