租售中心,荣民捌号-改善好房-高新开发区-地铁沿线 -建筑面积
扫描到手机,新闻随时看
扫一扫,用手机看文章
更加方便分享给朋友
西安「荣民捌号公寓」
售楼处:029-83222232(营销中心)
售楼部地址:029-83222232(致电发送详情地址)
如需了解最新房源信息_在售房源价格_请拨打上方售楼部电话!
基础信息
区域:高新一期CBD
项目占地:18666.67 ㎡
项目规划:规划4栋楼,472户
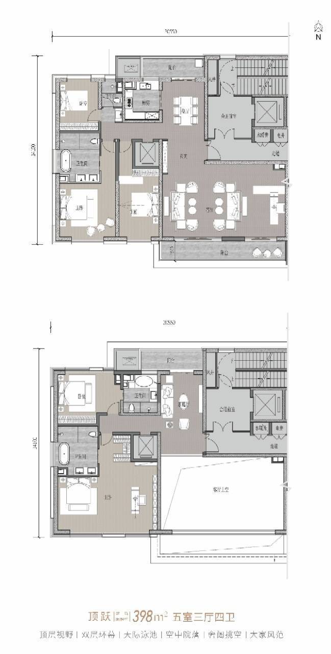
主力面积:3居(建面约197m)
4居(建面约210㎡) 4居(建面约243m)
教育配套:高新第一小&中学、钱学森第二小学、西安北大新世纪学校等
交通配套:近距地铁三号线丈八北路站及十一号线丁家桥站(规划中)
商业配套:世纪金花、高新金鹰、高新大都荟、中大国际、华润万家超市等
医疗配套:高新医院、西安医学院第一附属医院等
高新正芯·荣民数字系高端作品
全时生活·精粹配套
位于高新一期核心区,享高新第一小、中学,钱学森第二小学,西安北大新世纪学校,中大国际购物中心,高新医院等配套。
玻璃幕墙·国际审美
高级灰竖线条搭配灰铝板及LOW—E玻璃,让建筑彰显时尚基因与恢弘气度。
大师设计·一线品牌
梁志天大师操刀设计,甄选建筑建材用料和国际一线家装品牌,呈现更好的空间格局和实际居住体验。
宽景大宅·尺度生活
在售约197-243㎡环幕宽景,四室朝南,南向采光,约12米舒阔景致,营造尺度生活。
多功能会所·私属社交场
雪茄吧、红酒坊、恒温泳池、健身馆等社交空间,满足会客、休憩、商务休闲等需求;会所恒温泳池已常态化开放,欢迎鉴赏体验。
全龄段架空层·圈层生活
约5米高架空层社交空间,全龄互动花园、中西双式专属会客厅、私家泳池,打造圈层生活。
智能体系·健康享受
遵循绿色家居理念,以“恒氧、恒温、恒静、恒净”四恒空间,打造健康生活享受。
品质精装地库·满足停车需求
三层精装地库,配备一氧化碳检测系统,全面守护家人健康;同时配备车位980个,充分满足业主停车需求。
匠心精工·最新工程进度展示
荣民捌号深知您对家的期盼,从未停止步伐。怀着对生活的敬意以及对品质的追求,将所有专注与匠心融入一砖一瓦内,精心打磨家的每一处细节,只为给您定制专属质感人居。
户型鉴赏
【荣民捌号公寓】售楼处 029-83222232【售楼中心】
了解最新优惠折扣价格——请拨打售楼中心!
声明:本文由入驻焦点开放平台的作者撰写,除焦点官方账号外,观点仅代表作者本人,不代表焦点立场。
