城北写字楼|荣民中央国际—5A甲级商务办公,面积灵活组合
扫描到手机,新闻随时看
扫一扫,用手机看文章
更加方便分享给朋友
项目整体信息:
【建筑面积】约19万㎡ ,商业综合体7万㎡,商办3.5万㎡;
【物业类型】写字楼、自持商业;
【开 发 商】陕西荣民房地产集团有限公司
【楼栋数量】甲级写字楼1栋,超甲级270米超高层1栋;
【物业标准】5A甲级商务办公;
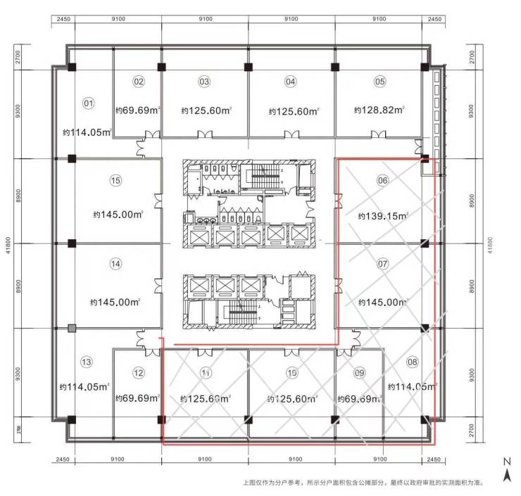
【面积区间】120-1700平米,单层产权分户15户,面积灵活组合;
【层高及梯户比】层高3.75m,8T15户;
【外 立 面】双层Low-E中空玻璃,降噪隔音100%防紫外线辐射;
【空 调】东芝品牌VRV多联空调系统,分户计费运行成本低;
【电 梯】配备8部蒂森克虏伯电梯,最长候梯时间仅为35S;
【公区装修】装修公司——金螳螂(上市公司),公共区域装标3500元/㎡;
【智能安防】24小时视频监控体系、报警消防全方位监测系统;
【柱 距】8.9m-9.3m超大柱距,实现办公可利用面积最大化;
【公 摊】公摊29%公摊率,超高得房率;
【上 下 水】标准层东南角及东北角预留上下水,设置茶歇区;
项目区域配套
【交通配套】项目紧邻地铁2号线大明宫站西站C口,距钟楼4站,行政中心3站,15分钟到达西安北客站,30分钟直达西安咸阳国际机场,多条地铁换乘,自驾1分钟直达黄金腰带北二环通达全城;
【政务配套】未央区政府、西安市政府、未央区税务大厅、未央区教育局、陕西省工商管理局、陕西工商税务局、西安市档案局等10余家政府机关分布于项目2公里以内,为企业提供优质的政务关系网;
【金融配套】周边招商银行、中国银行、交通银行、建设银行、邮政储蓄银行等20多个网点环伺,方便企业金融往来;
【商业配套】近邻荣民龙首广场,印象城,盛龙广场、荣民时代广场、世纪金花、熙地港、大融城等多个购物中心,全方位满足企业商务生活需求;
【酒店配套】1公里以内赛瑞喜来登、印力诺富特、亚多精选、柏瑞、美豪等多个星际酒店林立,可充分满足企业商旅需求;
【人文配套】东侧800米紧邻城北绿肺大明宫国家遗址公园,国家5A级旅游景区,臻享健康办公环境。
声明:本文由入驻焦点开放平台的作者撰写,除焦点官方账号外,观点仅代表作者本人,不代表焦点立场。
