高新金茂悦园_西安金茂悦园户型图_地址_金茂悦园价格_楼盘怎么样

搜狐焦点宝鸡站 2024-05-16 17:33:05
用手机看
扫描到手机,新闻随时看

扫一扫,用手机看文章
更加方便分享给朋友

西安高新金茂悦园项目位于西安高新技术产业开发区,紧邻西三环,交通便捷。项目聚焦年轻消费群体,主张Z世代的“悦级”生活,采用前沿的生活方式和极致的阔景空间,提供多人口居住和多功能空间。售楼处电话:029-68866626。

售楼处电话:029-68866626(营销中心)

户型图丨项目介绍丨房源丨_周边配套丨详细解答

售楼中心_欢迎来电咨询!预约尊享优惠折扣_匠心钜制恭迎品鉴!

如需了解最新房源信息_在售房源价格_请拨打上方售楼部电话!

温馨提示:看房需提前预约!

西安高新金茂悦园项目,东望西安高新技术产业开发区,南接丈八街道紧邻西三环,交通便捷,周边配套资源丰富,汇集学习、工作、居住为一体的现代化设施。在这万亿智慧产业基地,高净值人群的聚集地,西安高新金茂悦园聚焦年轻消费群体,主张Z世代的“悦级”生活,用更加前沿的生活方式、极致的阔景空间,精细的功能细节,满足Z世代“悦己至上”的个性标签与生活核心。

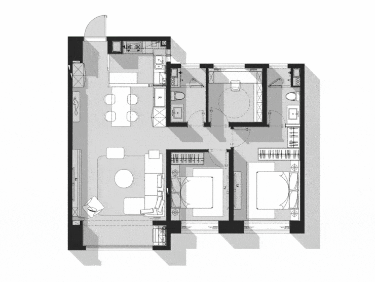
T2-143户型平面图

T2-143户型以三代同堂的居住状态为首要设计思考,大量的隐形橱柜与收纳,贴合多人口的现实需求,半开放式的厨房与客餐一体的设计让公共区域具有联动性,大面积的横窗具有较好的通风采光效果,借景入室打造自然之家,让每个家人都能在空间中寻找到最舒适的位置。

T4-120户型平面图

T4-120户型的居住结构以年轻夫妻为主,超大面积横厅简约大方,在操作动线上便利高效,在空间气度上更加开阔统一,两房方便亲朋好友小聚,多功能房则满足居住者多样化的生活方式。

T4-143户型平面图

T4-143户型以亲子欢乐时光的居住场景为核心打造,客厅着重保证日常起居活动空间的舒适与美观性,大容量高柜收纳,家庭日常运动,家政,收藏展示物品,方正宽敞的餐厅满足多人的用餐需求,可开可合的厨房加强社交功能,让家居生活更加和谐美好。

售楼处电话:029-68866626 (已认证)

声明:本文由入驻焦点开放平台的作者撰写,除焦点官方账号外,观点仅代表作者本人,不代表焦点立场。