唐樾六和坊【西安租售中心】→在售均价→楼盘介绍→新盘特惠→开发商直销
扫描到手机,新闻随时看
扫一扫,用手机看文章
更加方便分享给朋友
西安「唐樾六和坊」
服务热线:029-68866626(咨询中心)
项目地址:029-68866626(致电发送详情地址)
如需了解最新房源信息_在售房源价格_请拨打上方服务热线电话!

【项目简介】
开发商:陕西西瑞房地产开发有限责任公司
项目名称:东方馨苑项目(推广名:唐樾·六和坊|雲禧)
占地面积:35964㎡
建筑面积:98000㎡
容积率:2.76
绿化率:40%
总户数:756户
车位数:635个
车位比:1:0.8
楼栋数:10栋(18层小高层)
面积区间:104-134㎡(两室、三室),2梯2户
交房时间:2023年9月30日
物业公司:西安天腾物业管理有限公司
【关于开发商】
陕西西瑞房地产开发有限责任公司,是陕西西瑞(集团)有限责任公司的控股子公司。陕西西瑞(集团)有限责任公司是陕西省粮农集团骨干企业,企业主要以粮食收购、储存、加工、粮油贸易为主业,涉足期货交割、白糖贸易、物流配送、酒店餐饮、房地产开发多领域的大型省属国有控股企业。

自2002年成立以来,陕西西瑞房地产开发有限责任公司先后开发了“西瑞•北国之春”、“东方雅苑”、“东方名苑”和“唐樾•六和坊”等住宅项目。

周边配套:
中小学:陕师大附中、陕师大附小、后宰门小学、东前进小学,东元路学校;
幼稚园:星海幼儿园,爱儿坊幼儿园;

综合商场:大家润超市、家乐福超市、华润万家、易初莲花、辛家庙综合市场;

医院:骨科医院、唐城医院、军海医院;

银行:工商银行、建设银行、农业银行、西安银行、陕西信合。
交通状况:
周边的公交线路:乘环1号线、环2号线、227路、703路、211路、36路、309路、406路、216路、46路、17路 、410路、604:地铁

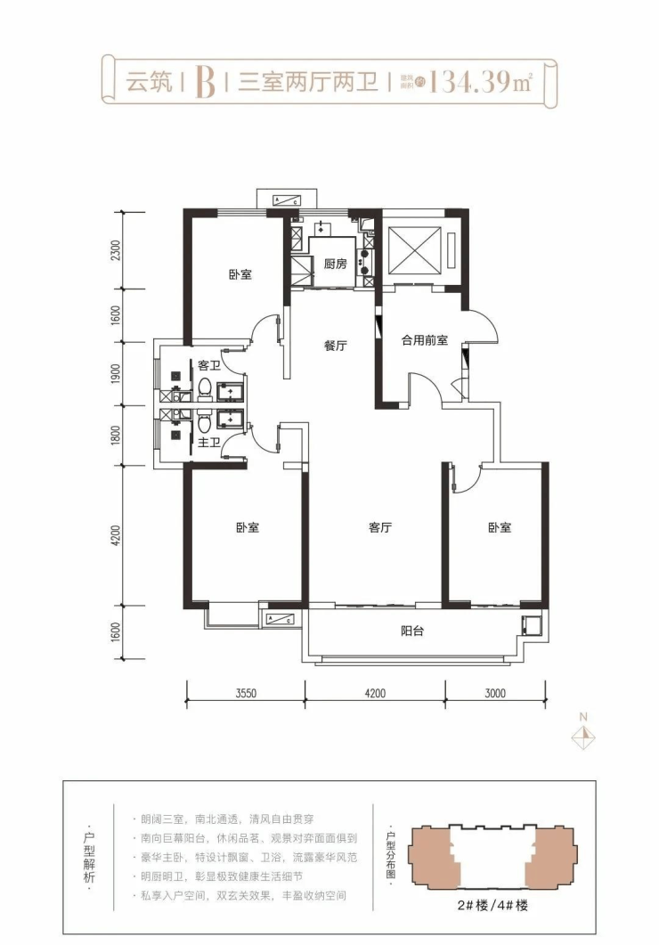
【户型赏析】


【唐樾六和坊】服务热线TEL:029-68866626 【咨询中心】
了解最新优惠折扣价格——请拨打服务热线
声明:本文由入驻焦点开放平台的作者撰写,除焦点官方账号外,观点仅代表作者本人,不代表焦点立场。
