老城根雍锦里【西安租售中心】—建筑面积—位置图—地铁沿线—五证齐全
扫描到手机,新闻随时看
扫一扫,用手机看文章
更加方便分享给朋友
西安「老城根雍锦里」
售楼处:029-88777723(营销中心)
售楼部地址:029-88777723(致电发送详情地址)
在售户型图丨项目详情介绍丨剩余房源丨项目周边配套丨详细在线解答
售楼中心_欢迎来电咨询!预约尊享优惠折扣_匠心钜制恭迎品鉴!
如需了解最新房源信息_在售房源价格_请拨打上方售楼部电话!
基本信息
楼盘名称:老城根·雍锦里
绿化率:35%
规划户数:467户
楼盘特点:一房一价 二环内 地铁沿线 商圈热盘 知名开发商
参考价格:17000元/m²
物业类型:住宅
开发商:陕西昇凯捷盛房地产开发有限公司
区域位置:二环内- 莲湖区- 星火路
楼盘地址:星火路与大兴东路十字西北角
【稀贵地脉】
承载主城生活向往 重构改善人居范本
·惟有城芯 浓缩一城精粹价值
依照城市规划理念中的“同心圆模式”,城市中心的土地价值最高,并按照均匀的半径向城市外围递减,城市中心是城市永恒不变的价值焦点。
北京主城国贸CBD:中国对外开放窗口
上海主城徐家汇:上海十大商业中心之一
 
·城根源脉 千载一脉皇城贵土
“定鼎之基永固,无穷之业在斯”,1442年前,隋修建大兴城,城墙作为皇城根基屹立,自此划定千年西安格局与文明底色,凝结成老西安人的历史情结与自信,汇聚新西安人的主城向往,惟此,长安留名,城市留根。
·惟此城芯 稀缺限购价值恒久
西安版图拓疆,高新、西咸等新区可无限延展,惟有城墙边中芯土地不可复制,永恒向往。
楼市新政,二环内持续限购,土地价值一城认可,有限核芯资产注定引人抢藏。
西安2023年二批次土地出让计划,碑林、莲湖、新城主城三区供地相加,仅占总出让面积约3.54%(数据来源:西安楼市情报公众号),主城新地已近告罄,未来难有新盘供应,进驻主城机会越来越少。
 
【繁华焕新:老城根G park潮流峯标】
·西安时尚潮流首席商圈
规模大:西安首个公园式商业娱乐大道、占地291.79亩,西安文商娱潮流中芯;
业态全:集餐饮、娱乐、休闲、购物、商务、文化、观光于一体,不止是潮流商业,更是目的地型微度假社交场所;
体验新:欢乐广场、水舞广场、水晶广场、悬浮天幕,街区式体验。
 
主城耕新第二篇章:世家典藏
老城根·雍锦世家
城根下世府家,老城根主城耕新改善力作,为当代世家阶层打造繁华芯的隐贵生活主场,城市人居地标即将美好呈现。
 
·主城耕新第三篇章:改善登峰
老城根·雍锦里
老城根匠心迭代之作,社区规制升维,产品价值登峰。以建面约135-180㎡改善终藏,为时代重构兼容繁华与静谧的森境生活,和鸣时代的主城向往。
 
森氧生命律动园
将健身场所置于开放的自然环境中,晨起舒动鲜氧,傍晚悠游养心,在生命与自然的融合中,悦享健康人生。
 
森系自然植物园
选取如丛生乌桕、丛生五角枫、丛生朴树、美国红枫、北美海棠、国槐、桂花、榉树、银杏等适宜西安本土生长的25种大小乔木珍植,通过设计搭配,营造时时有绿、处处皆景,自然与人文共生长的城芯私享植物园。
 
·精装电梯前室/走廊等公区
电梯前室/走廊等公区采用墙砖/地砖精装,营造品质归家氛围。一层透景玻璃,将景观引入室内,做到处处有景。
 
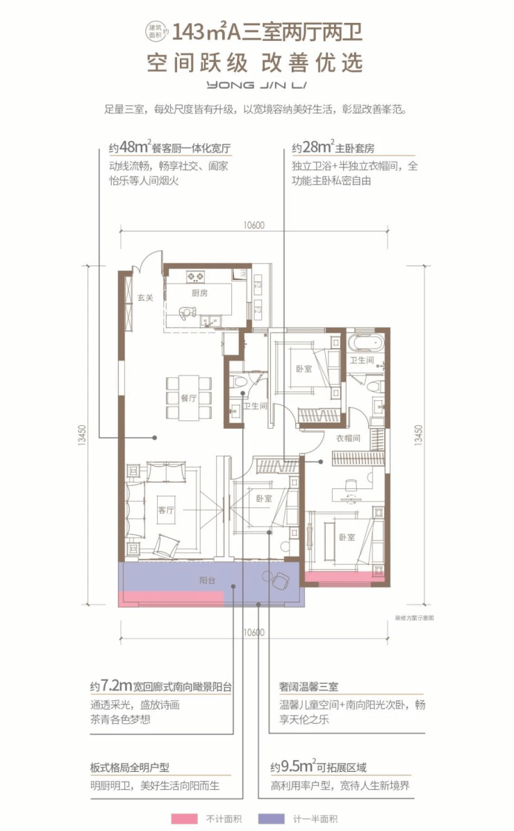
【宽奢人居:优改户型轻氧生活】
以匠心洞见进阶客群的改善需求,以典范户型助力人生进阶。
 
 
【老城根雍锦里】售楼处TEL: 029-88777723【售楼中心】
 
了解最新优惠折扣价格——请拨打售楼处
声明:本文由入驻焦点开放平台的作者撰写,除焦点官方账号外,观点仅代表作者本人,不代表焦点立场。
 
 
 