越秀铁建樽樾(首页网站)→户户空中露台→第四代住宅→改善优选→双地铁 + 云巴
扫描到手机,新闻随时看
扫一扫,用手机看文章
更加方便分享给朋友
西安「越秀铁建樽樾」
售楼处电话:029-68866626(营销中心)
售楼部地址:029-68866626(致电发送详情地址)
在售户型图丨项目详情介绍丨剩余房源丨项目周边配套丨详细在线解答

基本信息
楼盘名称:越秀铁建·樽樾
建筑类型:小高层,高层
规划户数:1012户
楼层状况:高层、小高层
楼盘特点:学校 配套纯熟 医院 轨交房 公园
物业类型:住宅
开发商:西安越鼎铁鑫房地产开发有限公司
区域位置:三环外- 高新- 丝路科学城
楼盘地址:祝仁路与星桥路交汇处西北角
【品牌篇】
『 越秀&铁建 双TOP产品线』
【越秀地产】越秀地产1983年成立,深耕楼市41年,全国最早成立的房地产企业之一、中国第一代商品房的缔造者、广州规模最大龙头国企之一,以“城市地标缔造者”身份,共建广州中轴线珠江新城及天河CBD,以“城市美好生活创领者”的使命愿景,不断打造品质标杆人居。

【中国铁建】
中国铁建股份有限公司,由中国人民解放军铁道兵发展而来,是全国最具实力、规模的特大型综合建设集团之一。
截至2023年,中国铁建位列世界500强第43位,累计荣获87项科学技术奖。中国铁建地产,实力布局京津冀、长三角、珠三角等全国45个城市,匠造245个精品项目。
连续18年跻身世界500强,全球250家最大承包商前3位,业务范围遍及全球140个国家和地区。

『周边配套』
◆交通:祝村站(地铁15号线,距项目约200m,规划中)、高新云轨(在建中)链接整个高新直达软件新城、西太路、西安南站(规划中)建成后是城南最大的交通枢纽、郭杜西站(地铁15号线与地铁6号线换乘站)、未来之瞳站(地铁6号线)、仁村站(地铁6号线)(直线距离约800米)、国际医学中心站(地铁6号线);
◆生态资源:永安渠海绵城市公园(直线距离约600m)、大仁遗址公园(直线距离约1.8km);

◆商业配套:永安渠商业文旅街(在建中)、未来广场A区(在建中)、首创奥莱、高新玫瑰 ONE(在建中)、阳光天地、长安方圆荟等;
◆教育配套:项目一路之隔西安高新区第十一初级中学、高新区第三十一小学(具体教育配套以后期政府划分为准);
◆医疗配套:西安市第一医院第一院区、西安国际医学中心(西北最大的三级甲等综合性医院,距离项目约2km)等;

【区域篇】
『当之无愧的西安城市名片+顶尖教育』
高新区 GDP:GDP 总量和增速都位居榜首,每年为西安贡献 27%的 GDP,2023 年高新区 GDP 突破 3400 亿元 ,约等于其余 7 大开发区之和 ,经济总量超过咸阳、宝鸡等地级市。
产业能级高 :高新区目前拥有 2 家千亿级企业和 7 家百亿级企业 , 已入驻华为、三星、中软国际、阿里、施耐德等 35 家世界 500 强企业;上市企业数量 74 家 , 占到整个西安的七成以上。
人才质素高 :高新人才密度全球排名第四 ,超过硅谷 , 2022 年高新区从业人口 87 万,本科以上学历占比近 50%,居全国高新区前列;研究生以上学历近 10 万人;各类研发人才 超过 50 万。
顶尖教育:最值得一提的,还是高新国际化、顶级的教育资源。高新区可以说是西安教育 密度最集中、教育质量最高的区域之一。优质教育作为高新区的“金字招牌”,高新教育目 前有市级、 区级、校级三级“名师+”研修共同体 396 个、三级三类”骨干教师 2124 人。 并且高新一中、一小是位列全国前十的名校 。

【产品篇】
『臻品之上 世界如我所见』
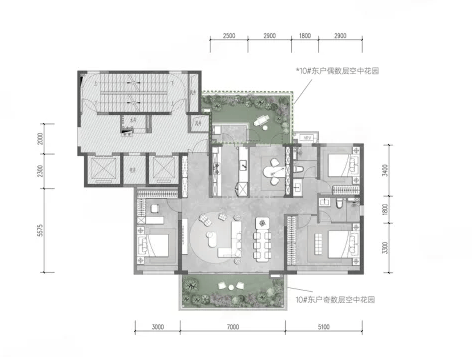
1、第四代住宅 连接未来“森活"




户型展示:





【越秀铁建樽樾】售楼处电话TEL:029-68866626【售楼中心】
了解最新优惠折扣价格——请拨打服务热线
声明:本文由入驻焦点开放平台的作者撰写,除焦点官方账号外,观点仅代表作者本人,不代表焦点立场。
