营销中心-万科雁鸣湖/开盘时间/项目特色/售楼处电话/优惠电话
扫描到手机,新闻随时看
扫一扫,用手机看文章
更加方便分享给朋友
西安「万科雁鸣湖」
售楼处:029-68866626(营销中心)
售楼部地址:029-68866626(致电发送详情地址)
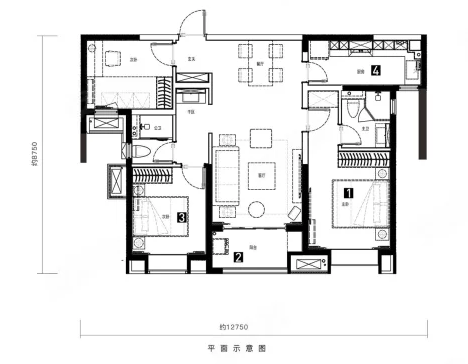
在售户型图丨项目详情介绍丨剩余房源丨项目周边配套丨详细在线解答

基本信息
绿化率: 37.71%
容积率: 2
占地面积: 约88亩
建筑面积: 239,379㎡
总户数: 2855户
车位比: 1:1.2
物业费: 住宅:2.2元/m²/月
车位: 2001 (地上:113 个 地下:1888个)
物业公司: 西安市万科物业服务有限公司
楼盘价格: 参考均价 14500 元/㎡ 周边房价解读
物业类型: 洋房 普通住宅
区域板块: 曲江
产权年限: 70年
项目特色: 景观居所 品牌房企 公园美宅 改善好房
开发商: 西安宜伽房地产开发有限公司,西安滨湖时代商业管理有限公司
楼盘地址: 陕西省西安市浐灞生态区雁鸣湖浐河西路12号
【关于开发商】
万科企业股份有限公司成立于1984年,1988年进入房地产行业,经过三十余年的发展,已成为国内领先的城乡建设与生活服务商,公司业务聚焦全国经济最具活力的三大经济圈及中西部重点城市。作为国内领先的城乡建设与生活服务商,在住房领域,万科致力于“为普通人盖好房子,盖有人住的房子”,不断改善城市居住品质,经过38 年的发展,万科从满足人们基本的住宅需求,逐渐提升为对人们品质生活的布局。
自2008年万科进驻大西安,目前已经开发40余个精品项目,为10万余家庭带去美好生活。除此以外,还打造以曲江创意谷、长安万科广场、龙首印象城、太白印象城、经开万科中心、万科云谷、汇智中心、金域国际等十余个商办综合体项目,与城市同发展,为客户创美好,与西安共向上。


城市中河湖资源旁边的住宅都是身份圈层的象征。城市配套可以发展,唯有山水资源不可复制。西安作为内陆城市,原生湖景资源更加稀缺。在西安,南湖之后,下一个既能兼得曲江丰盛生活配套,又能拥享雁鸣湖畔万亩生态资源的项目,就是万科雁鸣湖。

【项目配套】
1、交通:5号线一期马腾空站(已开通),距离项目约4.8公里;在建的5号线二期雁鸣湖站,距离项目约3公里;未来8号线与5号线在马腾空交汇,便捷通达高新、曲江、浐灞等;公共交通72、159、737(马腾空站),悦享悠然生活。

两纵:浐河西路、长鸣路;两横:南三环、绕城高速,无忧自驾出行;项目西侧杜陵邑南路已经开通,从雁鸣湖到曲江管委会约 2.2 公里,便捷通达曲江核心。

距项目约2.8公里的西安东站,规模远超西安北站,是西安最大的铁路客运枢纽站之一,著有世界东站之称,建成后将成为西安东南片区的重要枢纽,未来将形成多种交通方式于一体的特大型综合交通枢纽,可以预见,西安东站片区势必将成为西安东南片区发展的超级引擎!

2、教育:距项目最近的浐灞丝路国际学校,距离项目约6-7公里的西安曲江德闳学校、康桥国际学校西安曲江校区两大国际学校,满足多样教育需求。
3、医疗:西北妇女儿童医院、曲江新区医院(在建)、唐都医院、西京医院,医疗配套完备,为家人保驾护航。

4、商业:项目自身规划约1.1万方风情商业街,满足日常所需;大悦城、大唐不夜城、西安新乐汇、曲江银泰等大雁塔商圈,满足多维消费需求;曲江创意谷、雁翔广场,满足社交型消费需求;雁鸣湖商圈:可乐城(在建)、卧龙约360亩商业用地,3公里大型综合商圈。

5、生态:项目不仅可享一线雁鸣湖湖景景观,同时项目西侧西安植物园、中国唐苑、杜陵国际遗址公园三园串联环绕,三大公园共占地15350亩,相当于10个曲江池遗址公园,是都会核心不可再生的城市绿肺。东侧浐河与白鹿原环抱,享受”一湖一河三公园”的难得生态环境。

浐河,“八水绕长安”八水之一,素有“玄灞素浐”之称,集历史底蕴与生态资源于一体;

雁鸣湖,纯天然生态湖、西北最大的湿地公园、国家级湿地保护区、水鸟栖息地、4A 级景区,水域面积达1200余亩,是人造湖南湖的1.2倍。
西安植物园,占地约300亩,相当于60个标准足球场大小,是西北地区引种保存植物种类最多的植物园。

中国唐苑,是“西安万亩都市森林生态园”的重要组成部分,占地约2000亩,以盆景艺术享誉海内外,植入两万多棵几百年到上千年的古树,收集数以万计的奇石、巨石。
杜陵国家遗址公园,与项目一路之隔,占地约8.7平方公里(13050亩),整体规划实现与生态结合的遗址保护方式,将历史遗迹浏览与休闲功能良好结合。

6、高端人居板块布局。城市级配套落位兑现及生态环境加持,推升全新的城市高端宜居板块。以唐苑为中心,融创曲江印、玫瑰园、流光云谷、云松间,即将入市的星河湾等,西安近半的豪宅环绕排布。未来在这个兼具城市配套、珍稀环境、历史底蕴的大面积高端改善产品片区,万科雁鸣湖约110-135㎡产品,成为中等面积品质改善需求客户首选。

户型展示:



【万科雁鸣湖】售楼处TEL:029-68866626【售楼中心】
了解最新优惠折扣价格——请拨打售楼处
声明:本文由入驻焦点开放平台的作者撰写,除焦点官方账号外,观点仅代表作者本人,不代表焦点立场。
