华润置地世园润府(租售中心)▁122-270㎡ ▁价值分析▁公园▁毛坯
扫描到手机,新闻随时看
扫一扫,用手机看文章
更加方便分享给朋友
西安「华润置地世园润府」
服务热线:029-88777792 (咨询中心)
项目地址:029-88777792 (致电发送详情地址)
基本信息
楼盘名称:华润置地世园润府
产权年限住宅:70年
容积率住宅:2
绿化率:40%
规划户数:1949户
物业管理费住宅:3.2-4元/m²/月
物业公司:西安世园润盈置业有限公司
车位数:4203
车位比:1:2
楼盘特点:一房一价 第四代住宅 品牌开发商 公园 高绿化率
参考价格:23921元/m²
物业类型:住宅
开发商:西安世园润盈置业有限公司
区域位置:三环外- 浐灞国际港- 世园会
楼盘地址:世博园东侧,世博大道以南
周边配套:
教育
西安市浐灞第十九小学、爱华幼儿园(西安政物核段社区西北)、西安市第三十四中学、西安市灞桥区灞桥镇小学、金宸幼儿园(世博大道)、西安市八十三中学(浐灞分校)、纺织城小学灞柳分校、迎春花幼儿园、西安市浐灞第一中学、西安市浐灞第十八小学
交通
香湖湾(3号线)、灞桥收费站(西潼高速西南向)、世博园得宝门[公交站]、浐灞中心(3号线)、灞桥收费站(S3011绕城高速联络线东北向)、锻压厂[公交站]、务庄(3号线)、灞桥停车场[公交站]、一二四所[公交站]、锻压机床厂[公交站]
购物
百汇商业中心、西安华东购物广场、灞桥供销社供销商场、鲜都生活超市(纺渭路店)、香湖湾时代广场
楼盘
世园里、世园大公馆、上林艺境、香江湾、中铁琉森水岸、绿城桂语江南、云溪东境、中南樾府、世园林语、西安新天地金融中心(商业)
医疗
西安医学院第二附属医院(灞桥院区)、灞桥核锻社区卫生服务站预防接种门诊、方家村卫生室、西安市灞桥区人民医院、灞桥核锻社区卫生服务站、灞桥街卫生室、灞桥区红十字会医院、灞桥区灞桥第一社区卫生服务中心、读书村卫生室(核锻社区卫生服务站西北)、前海人寿医院
景观
灞桥生态湿地公园、西安千古情广场、灞河西岸滨河公园、灞桥街道办绿化健身广场、浐灞生态区汽车主题公园、北入口广场、香湖湾公园、灞柳西路3号小广场、西安尾水公园、灞柳西路2号小广场
生活
秦豫香早点、中国邮政储蓄银行(二一一小区)、中影 JMS国际影城(华东店)、顶美发型设计、娟子洗衣店、西安高新技师学院(浐灞校区)-操场、灞桥区畅阅书吧阅览室、美味川菜馆(灞桥堡路店)、秦农银行(读书村支行)、西安市灞桥区人民政府灞桥街道办事处公益电影放映点
交通状况:
香湖湾(3号线)、灞桥收费站(西潼高速西南向)、世博园得宝门[公交站]、浐灞中心(3号线)、灞桥收费站(S3011绕城高速联络线东北向)、锻压厂[公交站]、务庄(3号线)、灞桥停车场[公交站]、一二四所[公交站]、锻压机床厂[公交站]

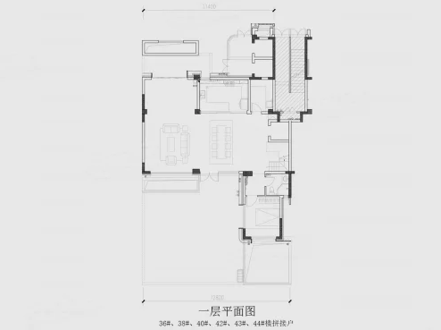
户型展示:

4室2厅2卫1厨, 143平米

3室2厅2卫1厨, 123平米

3室2厅2卫1厨, 123平米

4室2厅4卫1厨, 259平米
【华润置地世园润府】服务热线TEL:029-88777792 【咨询中心】
了解最新优惠折扣价格——请拨打服务热线
声明:本文由入驻焦点开放平台的作者撰写,除焦点官方账号外,观点仅代表作者本人,不代表焦点立场。
