老城根雍锦里(租售中心)-8号线轨交房-地铁沿线 -商圈热盘-户型图
扫描到手机,新闻随时看
扫一扫,用手机看文章
更加方便分享给朋友
西安「老城根雍锦里」
售楼处:029-68866626(营销中心)
售楼部地址:029-68866626(致电发送详情地址)
在售户型图丨项目详情介绍丨剩余房源丨项目周边配套丨详细在线解答
售楼中心_欢迎来电咨询!预约尊享优惠折扣_匠心钜制恭迎品鉴!
如需了解最新房源信息_在售房源价格_请拨打上方售楼部电话!

基本信息
绿化率: 35%
容积率: 4.50
占地面积: 15364㎡
建筑面积: 92783㎡
总户数: 467户
当期户数: 467户
车位比: 1:1.3
物业费: 2.2元/㎡·月
车位: 662
物业公司: 西安老城根物业管理服务有限公司
楼盘价格: 参考均价 17000 元/㎡ 周边房价解读
物业类型: 普通住宅
区域板块: 城西
产权年限: 70年
项目特色: 地铁沿线 改善好房
开发商: 陕西昇凯捷盛房地产开发有限公司
楼盘地址: 星火路与大兴东路十字西北角
【繁华焕新:老城根G park潮流峯标】
·西安时尚潮流首席商圈
规模大:西安首个公园式商业娱乐大道、占地291.79亩,西安文商娱潮流中芯;
业态全:集餐饮、娱乐、休闲、购物、商务、文化、观光于一体,不止是潮流商业,更是目的地型微度假社交场所;
体验新:欢乐广场、水舞广场、水晶广场、悬浮天幕,街区式体验。

·潮玩圣地:别人的追逐,不过是你的生活
西北旗舰店/首店聚集地:
迪奥、Coach、MK、%、等
各大品牌聚合场:盒马/方所书店/开顿影城/海底捞等
品质餐饮先享区:眉州东坡、老铺烤鸭、仟滕日料、靓靓蒸虾、薇酌饮、倾城瘾食等

【城市焕新:老城根TOD大城规划】
老城根集团约187亩TOD大城耕新主城。以标杆商业+改善人居,重塑城市格局,造极理想生活图景。
·主城耕新第一篇章:繁华启序
老城根G park
千年文脉与世界风潮碰撞融合,造就时尚生活集合体。更新老城面貌,焕新生活方式,引领时代潮流,让西安重新认识城西,让世界重新瞩目西安。

·主城耕新第二篇章:世家典藏
老城根·雍锦世家
城根下世府家,老城根主城耕新改善力作,为当代世家阶层打造繁华芯的隐贵生活主场,城市人居地标即将美好呈现。

·主城耕新第三篇章:改善登峰
老城根·雍锦里
老城根匠心迭代之作,社区规制升维,产品价值登峰。以建面约135-180㎡改善终藏,为时代重构兼容繁华与静谧的森境生活,和鸣时代的主城向往。

老城根·雍锦里 城芯森境住区
项目择址于大兴东路与星火路交汇处西南角,城墙根下,老城根G park南。将主城芯历史积淀的繁华、所见即所得的醇熟,化作生活基石。打通外部配套和内部森氧社区,打造森系生活、森氧景观、森感建筑,创造一个自然、健康、舒适的主城芯森境生活住区。
一、下楼即享醇熟生活
精粹资源共荟雍锦 造就城市生活峯标
·下楼即享:不止是配套,更是日常
社区与老城根G park无缝连接,下楼即享潮尚商业,随时随地掌握流行风尚,与潮流保持同频。

·近得师大附小系优教 赢在人生起跑线
约1KM即是陕师大实验小学,陕师大附小两大直属分校之一,优教学风一脉相承,师资力量毋庸置疑。

·约200M即是地铁口 8号环线(在建中)畅行全城
地铁8号环线,西安地铁路网中最重要的骨干线路,多达18个换乘站,链接全城,成为“中优”战略的交通命脉。

·1KM优渥生活圈 醇熟配套即享不等待
老城根·雍锦里汇聚一城向往的优渥生活配套,在主城价值加持下,不负土地禀赋,筑就一城仰望的主城生活范本。
1KM立体交通芯:大兴东路/星火路/朱宏路/8号线(在建中)
1KM自然生态芯:约2890亩汉城湖公园/约850亩西安环城公园
1KM三甲医疗芯:西安大兴医院/西安市儿童医院

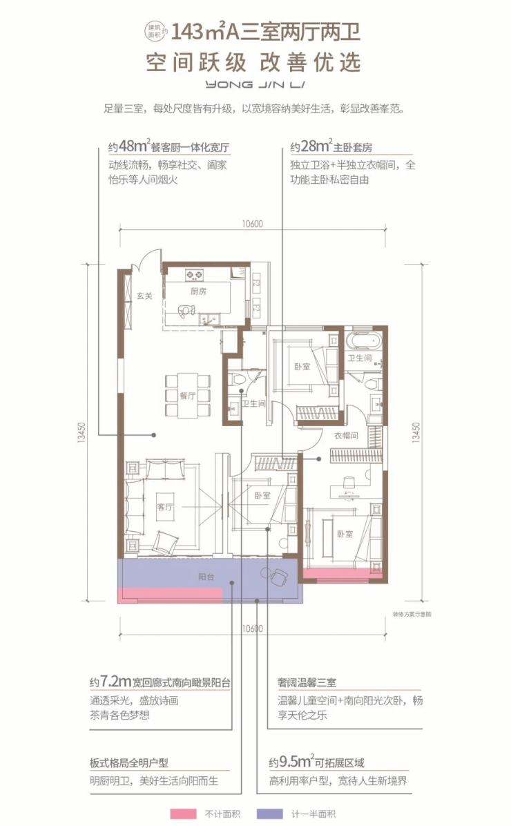
户型展示:



【老城根雍锦里】售楼处TEL:029-68866626【售楼中心】
了解最新优惠折扣价格——请拨打售楼处
声明:本文由入驻焦点开放平台的作者撰写,除焦点官方账号外,观点仅代表作者本人,不代表焦点立场。
