【商铺出售】老城根雍锦里—建筑面积—二环内—地铁沿线—五证齐全
扫描到手机,新闻随时看
扫一扫,用手机看文章
更加方便分享给朋友
西安「老城根雍锦里」
服务热线:029-88777723(咨询中心)
项目地址:029-88777723(致电发送详情地址)
如需了解最新房源信息_在售房源价格_请拨打上方服务热线电话

基本信息
楼盘名称:老城根·雍锦里
绿化率:35%
规划户数:467户
楼盘特点:一房一价 二环内 地铁沿线 商圈热盘 知名开发商
参考价格:17000元/m²
物业类型:住宅
开发商:陕西昇凯捷盛房地产开发有限公司
区域位置:二环内- 莲湖区- 星火路
楼盘地址:星火路与大兴东路十字西北角
【稀贵地脉】
承载主城生活向往 重构改善人居范本
·惟有城芯 浓缩一城精粹价值
依照城市规划理念中的“同心圆模式”,城市中心的土地价值最高,并按照均匀的半径向城市外围递减,城市中心是城市永恒不变的价值焦点。
北京主城国贸CBD:中国对外开放窗口
上海主城徐家汇:上海十大商业中心之一

·城根源脉 千载一脉皇城贵土
“定鼎之基永固,无穷之业在斯”,1442年前,隋修建大兴城,城墙作为皇城根基屹立,自此划定千年西安格局与文明底色,凝结成老西安人的历史情结与自信,汇聚新西安人的主城向往,惟此,长安留名,城市留根。
·惟此城芯 稀缺限购价值恒久
西安版图拓疆,高新、西咸等新区可无限延展,惟有城墙边中芯土地不可复制,永恒向往。
楼市新政,二环内持续限购,土地价值一城认可,有限核芯资产注定引人抢藏。
西安2023年二批次土地出让计划,碑林、莲湖、新城主城三区供地相加,仅占总出让面积约3.54%(数据来源:西安楼市情报公众号),主城新地已近告罄,未来难有新盘供应,进驻主城机会越来越少。
【繁华焕新:老城根G park潮流峯标】
·西安时尚潮流首席商圈
规模大:西安首个公园式商业娱乐大道、占地291.79亩,西安文商娱潮流中芯;
业态全:集餐饮、娱乐、休闲、购物、商务、文化、观光于一体,不止是潮流商业,更是目的地型微度假社交场所;
体验新:欢乐广场、水舞广场、水晶广场、悬浮天幕,街区式体验。

老城根·雍锦里 城芯森境住区
项目择址于大兴东路与星火路交汇处西南角,城墙根下,老城根G park南。将主城芯历史积淀的繁华、所见即所得的醇熟,化作生活基石。打通外部配套和内部森氧社区,打造森系生活、森氧景观、森感建筑,创造一个自然、健康、舒适的主城芯森境生活住区。
以园造景 森氧五园艺境绿洲
森境叠水流瀑园
水韵相映,自然声声入耳,区隔内外空间。让自然、艺术、生命力与社区完美相融,给予生活无限美好。

森氧生命律动园
将健身场所置于开放的自然环境中,晨起舒动鲜氧,傍晚悠游养心,在生命与自然的融合中,悦享健康人生。

森系自然植物园
选取如丛生乌桕、丛生五角枫、丛生朴树、美国红枫、北美海棠、国槐、桂花、榉树、银杏等适宜西安本土生长的25种大小乔木珍植,通过设计搭配,营造时时有绿、处处皆景,自然与人文共生长的城芯私享植物园。

·精装电梯前室/走廊等公区
电梯前室/走廊等公区采用墙砖/地砖精装,营造品质归家氛围。一层透景玻璃,将景观引入室内,做到处处有景。

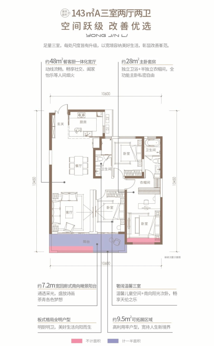
【宽奢人居:优改户型轻氧生活】
以匠心洞见进阶客群的改善需求,以典范户型助力人生进阶。


【老城根雍锦里】服务热线TEL:029-88777723【咨询中心】

了解最新优惠折扣价格——请拨打服务热线
声明:本文由入驻焦点开放平台的作者撰写,除焦点官方账号外,观点仅代表作者本人,不代表焦点立场。
