万科雁鸣湖【西安租售中心】/开盘时间/户型展示/售楼处电话/项目详情

搜狐焦点宝鸡站 2025-10-19 19:42:00
用手机看
扫描到手机,新闻随时看

扫一扫,用手机看文章
更加方便分享给朋友

万科·雁鸣湖位于浐灞生态区,三环外,湖景地产,知名开发商,售楼处电话029-68866626,精装住宅,一房一价,改善置业首选。

西安「万科雁鸣湖」

售楼处:029-68866626(营销中心)

售楼部地址:029-68866626(致电发送详情地址)

基本信息

楼盘名称:万科·雁鸣湖 在售

建筑类型:小高层,高层,花园洋房

产权年限住宅:70年

容积率住宅:2

绿化率:35%

规划户数:2855户

楼层状况:一期17栋(含公租房1栋),二期待定

物业管理费住宅:2.2元/m²/月

物业公司:西安市万科物业服务有限公司

车位数:2001 (地上:113 个 地下:1888个)

车位比1:1.2

楼盘特点:一房一价 无需摇号 知名开发商 湖景地产 改善置业

参考价格:15500元/m²

物业类型:住宅

开发商:西安宜伽房地产开发有限公司,西安滨湖时代商业管理有限公司

区域位置:三环外- 雁塔区- 等驾坡

楼盘地址:浐河西路12号

【项目区位】

项目位于浐灞生态区雁鸣湖板块,不仅坐拥曲江成熟生活圈,同时享有浐灞生态环境,是主城湖居难得的双稀缺作品。项目共分三期开发,一期及二期首批次已售罄,此次预计推售三期。

西安大力建设国际中心城市,实施“南控、北跨、西融、东拓、中优”空间发展战略,城市向东拓展发展是大趋势。曲江发展饱和之后,向东外延,东三环内的区域,承接曲江上游优质配套和产业资源,自身版块交织着西安文化产业大走廊、科创大走廊、对外开放通道和浐灞生态区,东侧还有西安东站和雁鸣湖公园正在建设,正在成为曲江繁华下一站,也是全城买房置业优选地。

西安东站,接入了西十、西康和西延等高铁,成为西安“米字型”高铁最关键环节。从各项指标和线路上来看,西安东站创造了多个记录,成为全国特大型铁路综合交通枢纽之一。从西安整体战略布局上来看,东部是“国际文化交流轴”,云集了众多国家级工程和多个城市功能片区。

西安东站的建设,将成为“东轴”全新的发展引擎。西安东站建成后将直接推动西安东南片区发展。东南部区域,也将以全功能的西安东站枢纽为核心,重构交通距离和时间。并辐射周边区域,促进区域的协调发展。

周边配套:

医疗:西安纵享怡月母婴护理会所(月子会所)、西安未央金泉口腔诊所、美黛医疗美容、海涛口腔(文景店)、西安铁齿铜牙口腔、小白兔口腔医疗集团(未央分院)、达芬琪口腔、橡皮擦医疗美容(熙地港店)、王佛民诊所、余和堂中医馆。

银行:中国邮政储蓄银行(西安市凤城八路支行)

、招商银行(文景路)、上海浦东发展银行(西安文景路支行)、兴业银行(西安文景路支行)、八路支行)、支行园小区分理处)、中国建设银行(西安风景御园小区分理处)。

商业:CITYON熙地港、汉神购物广场、西安大融城IMIXPARK、王府井百货(熙地港店)、卜蜂莲花购物中心(明光路店)、中登广场、世纪金花(赛高店)、卜蜂中心(新天地店)、林间集市、醉美家超市(望景汇购物中心店)。

交通状况:

轨道交通:文景路站、行政中心站、凤城九路站、凤城五路站、运动公园站、市中医医院站。

公共交通:行政中心西区站 163路、265路、浐灞9号线;文景路凤城八路口站 108路、117路、163路、182路、263路、265路、266路、840路、浐灞9号线;文景路凤城七路口站 108路、117路、182路、234路、238路、263路、265路、266路、600路、901路区间;张家堡站 50路、197路、207路、723路、901路区间

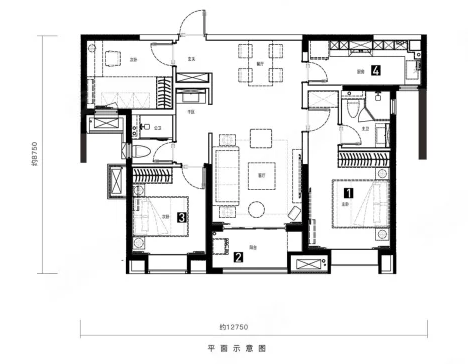
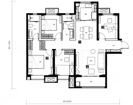
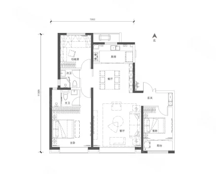
户型展示:

【万科雁鸣湖】售楼处TEL:029-68866626【售楼中心】

了解最新优惠折扣价格——请拨打售楼处

声明:本文由入驻焦点开放平台的作者撰写,除焦点官方账号外,观点仅代表作者本人,不代表焦点立场。