(商铺在售)保利天珺 —容积率—五证齐全—周边设施—环境
扫描到手机,新闻随时看
扫一扫,用手机看文章
更加方便分享给朋友
西安「保利天珺」
售楼处:029-88777792(营销中心)
售楼部地址:029-88777792(致电发送详情地址)
在售户型图丨项目详情介绍丨剩余房源丨项目周边配套丨详细在线解答
基本信息
楼盘名称:保利·天珺
绿化率: 35%
容积率: 3.11
占地面积: 500亩,首开DK2(一期)93.21亩
建筑面积: 193225㎡
总户数: 1202户
车位比: 1:1.5
车位: 1931 (地下:1931个)
物业公司: 陕西保利物业服务有限公司
楼盘价格: 参考均价 20853 元/㎡ 周边房价解读
物业类型: 住宅
区域板块: 曲江
产权年限: 70年
项目特色: 改善好房
开发商: 西安中嘉置业有限公司
楼盘地址: 雁塔南路与航天北路十字西北角
每一次伟大开篇
都源自纯正的坚守
保利天字系 传承经典本原
以超越理想的标准
荟聚城市天赋资源
为西安 缔造跨越时间的经典
「 国之长子 万亿央企保利 」
30载保利发展控股,布局全球一百余城,聚焦地产开发、物业服务等多元服务长年稳居央企龙头,更荣获2022年中国房地产百强企业TOP2、年度社会责任感企业TOP1等多项荣誉,目前百强房企前TOP5中,唯一“三档全绿”的央企。2012年保利发展控股携“和者筑善”的核心品牌理念落子西安,择址城市核芯坐标,全城布局超20盘。目前陕西保利战略土地储备量近2000亩,储备货值近千亿,从无逾期交房记录,以央企责任兑现品质承诺。
「 天珺作品系 衔玉而生 」
保利天珺遵循5大择址原则,占位城市中心、具备发展引擎、享有自然资源,依附全景配套以及承载属地人文,洞悉当代人居的需求与趋势,契合高端人群“文化传承和财富沉淀”的诉求,依附天赋资源,沉淀与众不同的圈层生活,以国际尖峰的生活形态,构筑穿越时间周期的作品,于珍贵的市心土地,收藏更珍贵的生态孤本。

傲立千年贵脉 醇享塔尖城配
「人文之境 」- 汇集千年古人文禀赋
雁塔南路,作为世界文化遗产轴、城市发展轴、城市景观生态轴,拥有着其他轴线所不可比拟的价值,千年光阴流转,如今在这条中轴的南端,保利央企满怀着对土地的敬意,因天赋而生,集地力,归人和,保利天珺衔玉而生。
「峯尚之境」- 游走曲江高端生活圈
南湖商圈:金地广场、还有超级网红曲江书城和 W 酒店;
大雁塔商圈:红遍全国的大唐不夜城、大悦城还有威斯汀酒店等;
雁翔路商圈:曲江创意谷、正荣·彩虹谷等;
CCBD商圈:金辉·环球广场,华润万象城更多哦未来规划的商务办公配套商业以及项目自身配套商业,多种繁华商业配套受都市生活,满足日常所需。
「自然之境」- 珍藏城市的一脉绿意
曲江一期:先后建成大雁塔北广场、大唐芙蓉园、曲江国际会展中心、曲江池遗址公园、大唐不夜城,唐城墙遗址公园等一批重大文化项目,跃升为西部最重要的文化、旅游集散地, 陕西文化、旅游产业发展的标志性区域;
曲江二期:城市运动公园、杜邑遗址公园、唐苑、秦二世陵遗址公园、明秦宣王墓遗址公园、电竞主题公园等。
一座空中院馆 珺献时代人物
保利 “天”字系TOP级作品
开发商:西安中嘉置业有限公司
首开地块:DK2(一期)
总占地:93.21亩
绿化率:约35%
总户数:1200户
容积率:3.11
整体规划:17栋
产品面积:建面约140-190㎡空中院馆
产品形态:小高、高层
「沉浸场景」
度假森境 让生活与自然无界
项目塑造别样自然基底的归家入口,由开放纷扰过渡到静谧精致,悠享人文归家路;社区园林通过山、水、林、隐元素,打造地势起伏、移步异景的立体空间,突破视野极限,勾勒以水景为基底的游赏庭院,叠水流瀑,营造隐贵的自然生活画卷,建立城市与自然之间的平衡。
圈层私域 让社交与自然无界
深谙层峯人士对高端生活的极致追求,定制5大主题架空层,红酒洽谈吧、雪茄吧、健身房、架空层会所、星级泳池等,全场景功能营造,定制尊崇体验感。
空中院馆 让建筑与自然无界
深研人居的美学表达,采用湾流镜面曲线的立面设计,通过自然造物的弧线美学与光影器物得相融合;每户超大南向阳台向外衔接通高约6-6.2米延伸空间,恰如一艘停靠在安静港湾的游艇,随时驶入更广阔更高处的自由之境。
场景交互 让产品与自然无界
270°巨幕端厅,观景面从两面观景扩幅到三面,尊享IMAX级的超级感官体验和极致化追求,眼无限,心无界;以顶级酒店总统级套房式空间体验,享受独立衣帽间、私人书房、情境阳台、通高延伸空间,将城市居住的所有想象解构,延展生活的质感与丰盈。
「户型展示」
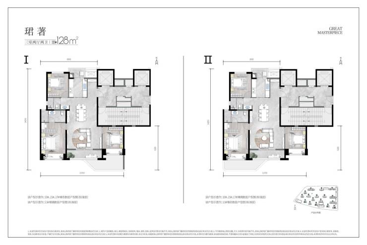
高层128㎡?三室两厅两卫
小高层143㎡?四室两厅两卫
高层143㎡?四室两厅两卫
小高层168㎡?四室两厅三卫
小高层186㎡?四室两厅三卫
【保利天珺】售楼处TEL:029-88777792【售楼中心】
了解最新优惠折扣价格——请拨打售楼处
声明:本文由入驻焦点开放平台的作者撰写,除焦点官方账号外,观点仅代表作者本人,不代表焦点立场。
