【商铺推荐】豪布斯卡商铺| 地址| 位置图| 户型| 规划图
扫描到手机,新闻随时看
扫一扫,用手机看文章
更加方便分享给朋友
西安「豪布斯卡商铺」
售楼处:029-88866690(营销中心)
售楼部地址:029-88866690(致电发送详情地址)
在售户型图丨项目详情介绍丨剩余房源丨项目周边配套丨详细在线解答

01 项目概述
1.1 豪布斯卡(HOPSCA)
豪布斯卡(HOPSCA)是城市中的居住、办公、商务、出行、购物、文化娱乐、社交、游憩等各类功能复合、相互作用、互为价值链的高度集约的街区建筑群体。HOPSCA是六大业态英文首字母的集合:酒店(Hotel)、办公(Office)、公园(Park)、商场(Shopping mall)、会议(Convention)、公寓(Apartment)。
主要建设内容包括:西办公楼、酒店、东办公楼、办公楼D、办公楼E及沿街商业裙房。
陕西旅游集团总部大楼(西办公楼)已建成并投入使用,集团与各子公司已入驻办公

1.2 豪布斯卡二期
豪布斯卡二期(办公楼D、办公楼E及底层商业)位于长安区东部,航创路与内部道路西北处,北邻陕西工科实业集团,西邻富华博派时代 ,地理位置和交通条件优越显著。
项目用地面积15.9亩,总建筑面积83385㎡。主要功能为写字楼及商业(其中:办公楼E,18层,层高5.4米;办公楼D,30层,层高3.1米;商业裙房2层)。

2.1 区位交通
项目位于雁塔南路与航创路交汇处,紧邻地铁15号线(建设中),直通大学城、高新区,距离地铁15号线神舟二路站步行约5分钟。侧邻地铁2、4号线,贯穿城南城北。东长安街、雁塔南路,双主干道加持,立体交通畅达全城。

02 区域配套
2.2 教育配套
西安交通大学附属中学航天学校、西安航天中学、西安航天小学、航天城各公立学校及幼儿园。

2.3 公共设施配套
公园
东邻航天城中湖公园,西邻星河运动公园,外加航天城文化生态园及航天城东湖公园,周边公园环伺,为您打造绿色、生态的办公环境。

医疗
项目三公里范围内有两所甲级医院:西安市人民医院、西安航天总医院。

2.4 商业配套
项目自带约5万㎡商业配套,外加揽月阁前金旅城·南璟未来商业综合体,商业配套完善,满足购物、娱乐的一站式消费需求

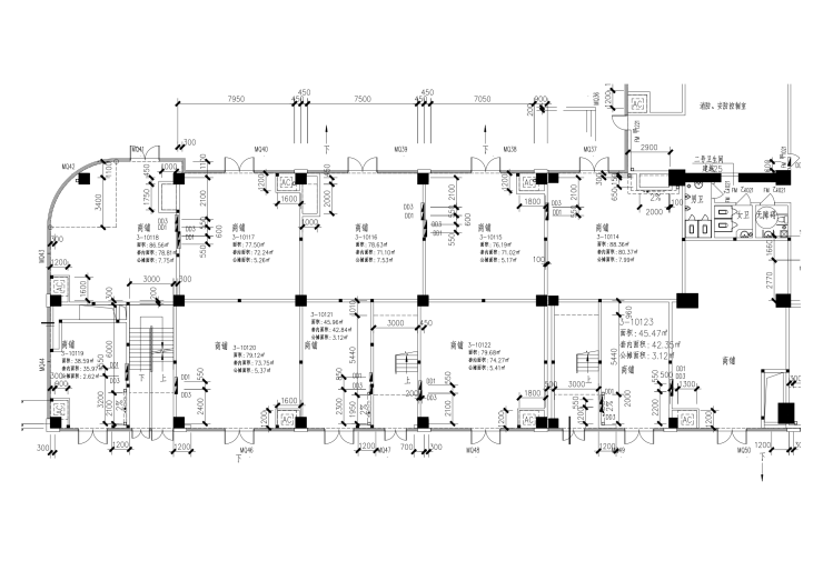
产品类型

3.3 商铺实景图 独栋商铺,可餐饮(面积1400㎡)
【豪布斯卡商铺】售楼处TEL:029-88866690【售楼中心】
了解最新优惠折扣价格——请拨打售楼处
声明:本文由入驻焦点开放平台的作者撰写,除焦点官方账号外,观点仅代表作者本人,不代表焦点立场。
