西安商铺出售-高科|轩阅里-在售楼栋-责任国企-物业公司-内部配套

搜狐焦点宝鸡站 2025-10-18 19:48:00
用手机看
扫描到手机,新闻随时看

扫一扫,用手机看文章
更加方便分享给朋友

西安高科·轩阅里售楼处开放,主打一房一价、二至三环,融合自然与城市绿芯,提供舒适三房及全生命周期健康服务。

西安「高科|轩阅里」

售楼处:029-88777723(营销中心)

售楼部地址:029-88777723(致电发送详情地址)

在售户型图丨项目详情介绍丨剩余房源丨项目周边配套丨详细在线解答

基本信息

楼盘名称:高科·轩阅里 在售

楼盘特点:一房一价 二至三环 品牌开发商 民办小学 学校

参考价格:18200元/m²

物业类型:住宅

开发商:西安高新技术产业开发区房地产开发有限公司

区域位置:二至三环- 高新- 丝路软件城

楼盘地址:鱼斗路与西三环相交东南角

最新开盘:2024年12月4日

售楼处地址:西安·高新·丝路软件城·天谷四路

责任国企

西安高科地产有限公司成立于2023年,诞生于西安高新区“双中心”建设全面启动、高科集团“转型升级、创新发展”全面加速之际,是高科集团机构改革后的核心子企业。

城市绿芯,公园簇拥诗意家

【公园近揽】高新悬浮公园、沣惠绿道、皂河生态景观带;

【城市绿芯】唐城墙遗址公园、昆明池遗址公园、西安人才公园。

匠心规划

精著范本,代言高科地产匠心态度

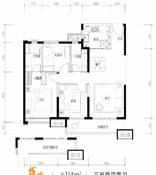
【精筑理念】轩阅里运用精而美的打造理念,匠筑MINI型自然森居品质社区,以“森林里,写意山水”为景观设计理念,从入口、中央会客厅、到儿童游乐园、萌宠乐园、健身空间进行健康、多元生活的演绎,同时赋予空间更多可能性,打造弹性的邻里生活空间,完成"入则宁静,出则繁华"的心境转换。设计建筑面积95-114㎡户型,容得下"小太阳家庭”的幸福与欢聚,也装得下三代同堂的自在与惬意,拥抱品质生活想象。

全生命周期健康服务

轩阅里业主优先享受枫叶整合照护全系康养服务,包含枫叶整合照护机构优先入住权和业主优惠权,让美好生活覆盖全生命周期,也深入每个日常细节。

人生上行·共美高新

轩阅里95-114㎡舒适三房,上新在即

【舒适格局】

南北通透格局、餐客厨科学布局、流畅动线设计,主卧套房、双卫配置,晨洗晚漱更从容,极大提升舒适度;户户双卫配置,为一家人的晨起夜归更舒适、从容。

【高科|轩阅里】售楼处TEL:029-88777723【售楼中心】

了解最新优惠折扣价格——请拨打售楼处

声明:本文由入驻焦点开放平台的作者撰写,除焦点官方账号外,观点仅代表作者本人,不代表焦点立场。