老城根雍锦里-2025租售中心-地铁沿线-毛坯 -商圈热盘-知名开发商
扫描到手机,新闻随时看
扫一扫,用手机看文章
更加方便分享给朋友
西安「老城根雍锦里」
售楼处:029-68866626(营销中心)
售楼部地址:029-68866626(致电发送详情地址)
在售户型图丨项目详情介绍丨剩余房源丨项目周边配套丨详细在线解答

基本信息
绿化率: 35%
容积率: 4.50
占地面积: 15364㎡
建筑面积: 92783㎡
总户数: 467户
当期户数: 467户
车位比: 1:1.3
物业费: 2.2元/㎡·月
车位: 662
物业公司: 西安老城根物业管理服务有限公司
楼盘价格: 参考均价 17000 元/㎡ 周边房价解读
物业类型: 普通住宅
区域板块: 城西
产权年限: 70年
项目特色: 地铁沿线 改善好房
开发商: 陕西昇凯捷盛房地产开发有限公司
楼盘地址: 星火路与大兴东路十字西北角
【稀贵地脉】
承载主城生活向往 重构改善人居范本
·惟有城芯 浓缩一城精粹价值
依照城市规划理念中的“同心圆模式”,城市中心的土地价值最高,并按照均匀的半径向城市外围递减,城市中心是城市永恒不变的价值焦点。
北京主城国贸:中国对外开放窗口
上海主城徐家汇:上海十大商业中心之一

·城根源脉 千载一脉皇城贵土
“定鼎之基永固,无穷之业在斯”,1442年前,隋修建大兴城,城墙作为皇城根基屹立,自此划定千年西安格局与文明底色,凝结成老西安人的历史情结与自信,汇聚新西安人的主城向往,惟此,长安留名,城市留根。
·惟此城芯 稀缺限购价值恒久
西安版图拓疆,高新、西咸等新区可无限延展,惟有城墙边中芯土地不可复制,永恒向往。
楼市新政,二环内持续限购,土地价值一城认可,有限核芯资产注定引人抢藏。
西安2023年二批次土地出让计划,碑林、莲湖、新城主城三区供地相加,仅占总出让面积约3.54%(数据来源:西安楼市情报公众号),主城新地已近告罄,未来难有新盘供应,进驻主城机会越来越少。
【城根匠作】
本土名企耕新城根 营造都会繁华谧境
【生活大师:老城根文化产业集团】
老城根文化产业集团,西安本土实力名企。在城墙根下孕育而生,致力于更新城市面貌,创造更有价值、更现代的都会生活空间,持续焕新主城生活方式。

会呼吸的质感建筑
东方元素融贯现代匠艺 筑就隐奢静谧的森质臻宅
【森感建筑:栖心雅宅美学封面】
·公建化外立面典范形制
中式横向肌理、超高窗墙比、“黄韵银律”等功能形制与建筑美学有机统一,阳光清风无界,采光视野扩容,以居所品质彰显身份认知。
·纯板式高阶建筑格局
270°瞰景视野、约8%-13%高赠送宽奢户型、层高、奢阔南向开间(除135㎡户型)、南北向通透对流,“会呼吸”的好房子。

【森质细节:雕琢细节精致生活】
·酒店式透景归家大堂
归家大堂以酒店式接待为蓝本,空间、材质及灯光多维度组合,内部枯山水与外部森氧园景对韵映照,艺术与生活完美融合,令到访者切身体验到归家的仪式感、自由感。

·地下车库精装双大堂
匠筑地库归家空间、休憩区,营造双入户大堂,连接住宅地上地下功能空间,凸显豪华与尊贵,高定生活从归家开始。

·精装电梯前室/走廊等公区
电梯前室/走廊等公区采用墙砖/地砖精装,营造品质归家氛围。一层透景玻璃,将景观引入室内,做到处处有景。

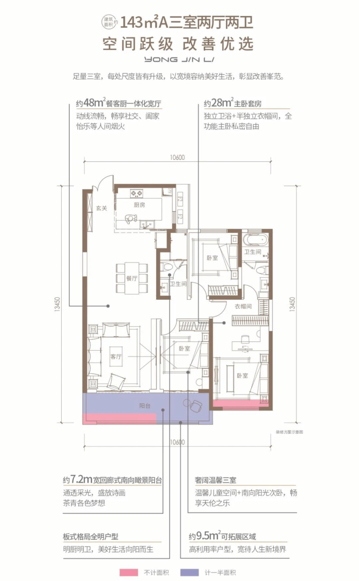
户型展示:



【老城根雍锦里】售楼处TEL:029-68866626【售楼中心】
了解最新优惠折扣价格——请拨打售楼处
声明:本文由入驻焦点开放平台的作者撰写,除焦点官方账号外,观点仅代表作者本人,不代表焦点立场。
