营销中心-万科雁鸣湖/开盘时间/项目特色/建筑面积/优惠电话

搜狐焦点宝鸡站 2025-10-01 19:42:00
用手机看
扫描到手机,新闻随时看

扫一扫,用手机看文章
更加方便分享给朋友

万科雁鸣湖项目位于西安三环外,集湖景、生态与优质配套于一体,是改善型住宅代表,由知名开发商万科打造。

西安「万科雁鸣湖」

售楼处:029-68866626(营销中心)

售楼部地址:029-68866626(致电发送详情地址)

基本信息

楼盘名称:万科·雁鸣湖 在售

建筑类型:小高层,高层,花园洋房

产权年限住宅:70年

容积率住宅:2

绿化率:35%

规划户数:2855户

楼层状况:一期17栋(含公租房1栋),二期待定

物业管理费住宅:2.2元/m²/月

物业公司:西安市万科物业服务有限公司

车位数:2001 (地上:113 个 地下:1888个)

车位比1:1.2

楼盘特点:一房一价 无需摇号 知名开发商 湖景地产 改善置业

参考价格:15500元/m²

物业类型:住宅

开发商:西安宜伽房地产开发有限公司,西安滨湖时代商业管理有限公司

区域位置:三环外- 雁塔区- 等驾坡

楼盘地址:浐河西路12号

【关于开发商】

万科企业股份有限公司成立于1984年,1988年进入房地产行业,经过三十余年的发展,已成为国内领先的城乡建设与生活服务商,公司业务聚焦全国经济最具活力的三大经济圈及中西部重点城市。作为国内领先的城乡建设与生活服务商,在住房领域,万科致力于“为普通人盖好房子,盖有人住的房子”,不断改善城市居住品质,经过38 年的发展,万科从满足人们基本的住宅需求,逐渐提升为对人们品质生活的布局。

自2008年万科进驻大西安,目前已经开发40余个精品项目,为10万余家庭带去美好生活。除此以外,还打造以曲江创意谷、长安万科广场、龙首印象城、太白印象城、经开万科中心、万科云谷、汇智中心、金域国际等十余个商办综合体项目,与城市同发展,为客户创美好,与西安共向上。

城市中河湖资源旁边的住宅都是身份圈层的象征。城市配套可以发展,唯有山水资源不可复制。西安作为内陆城市,原生湖景资源更加稀缺。在西安,南湖之后,下一个既能兼得曲江丰盛生活配套,又能拥享雁鸣湖畔万亩生态资源的项目,就是万科雁鸣湖。

周边配套:

医疗:西安纵享怡月母婴护理会所(月子会所)、西安未央金泉口腔诊所、美黛医疗美容、海涛口腔(文景店)、西安铁齿铜牙口腔、小白兔口腔医疗集团(未央分院)、达芬琪口腔、橡皮擦医疗美容(熙地港店)、王佛民诊所、余和堂中医馆。

银行:中国邮政储蓄银行(西安市凤城八路支行)

、招商银行(文景路)、上海浦东发展银行(西安文景路支行)、兴业银行(西安文景路支行)、八路支行)、支行园小区分理处)、中国建设银行(西安风景御园小区分理处)。

商业:CITYON熙地港、汉神购物广场、西安大融城IMIXPARK、王府井百货(熙地港店)、卜蜂莲花购物中心(明光路店)、中登广场、世纪金花(赛高店)、卜蜂中心(新天地店)、林间集市、醉美家超市(望景汇购物中心店)。

交通状况:

轨道交通:文景路站、行政中心站、凤城九路站、凤城五路站、运动公园站、市中医医院站。

公共交通:行政中心西区站 163路、265路、浐灞9号线;文景路凤城八路口站 108路、117路、163路、182路、263路、265路、266路、840路、浐灞9号线;文景路凤城七路口站 108路、117路、182路、234路、238路、263路、265路、266路、600路、901路区间;张家堡站 50路、197路、207路、723路、901路区间

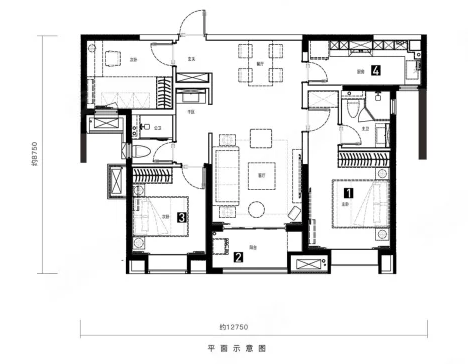
户型展示:

【万科雁鸣湖】售楼处TEL:029-68866626【售楼中心】

了解最新优惠折扣价格——请拨打售楼处

声明:本文由入驻焦点开放平台的作者撰写,除焦点官方账号外,观点仅代表作者本人,不代表焦点立场。