老城根雍锦里【西安租售中心】—知名开发商—位置图—改善好房—楼盘动态
扫描到手机,新闻随时看
扫一扫,用手机看文章
更加方便分享给朋友
西安「老城根雍锦里」
售楼处:029-88777723(营销中心)
售楼部地址:029-88777723(致电发送详情地址)
在售户型图丨项目详情介绍丨剩余房源丨项目周边配套丨详细在线解答
基本信息
楼盘名称:老城根·雍锦里
绿化率:35%
规划户数:467户
楼盘特点:一房一价 二环内 地铁沿线 商圈热盘 知名开发商
参考价格:17000元/m²
物业类型:住宅
开发商:陕西昇凯捷盛房地产开发有限公司
区域位置:二环内- 莲湖区- 星火路
楼盘地址:星火路与大兴东路十字西北角
【稀贵地脉】
承载主城生活向往 重构改善人居范本
·惟有城芯 浓缩一城精粹价值
依照城市规划理念中的“同心圆模式”,城市中心的土地价值最高,并按照均匀的半径向城市外围递减,城市中心是城市永恒不变的价值焦点。
北京主城国贸CBD:中国对外开放窗口
上海主城徐家汇:上海十大商业中心之一

·城根源脉 千载一脉皇城贵土
“定鼎之基永固,无穷之业在斯”,1442年前,隋修建大兴城,城墙作为皇城根基屹立,自此划定千年西安格局与文明底色,凝结成老西安人的历史情结与自信,汇聚新西安人的主城向往,惟此,长安留名,城市留根。
·惟此城芯 稀缺限购价值恒久
西安版图拓疆,高新、西咸等新区可无限延展,惟有城墙边中芯土地不可复制,永恒向往。
楼市新政,二环内持续限购,土地价值一城认可,有限核芯资产注定引人抢藏。
西安2023年二批次土地出让计划,碑林、莲湖、新城主城三区供地相加,仅占总出让面积约3.54%(数据来源:西安楼市情报公众号),主城新地已近告罄,未来难有新盘供应,进驻主城机会越来越少。
【繁华焕新:老城根G park潮流峯标】
·西安时尚潮流首席商圈
规模大:西安首个公园式商业娱乐大道、占地291.79亩,西安文商娱潮流中芯;
业态全:集餐饮、娱乐、休闲、购物、商务、文化、观光于一体,不止是潮流商业,更是目的地型微度假社交场所;
体验新:欢乐广场、水舞广场、水晶广场、悬浮天幕,街区式体验。

老城根·雍锦里 城芯森境住区
项目择址于大兴东路与星火路交汇处西南角,城墙根下,老城根G park南。将主城芯历史积淀的繁华、所见即所得的醇熟,化作生活基石。打通外部配套和内部森氧社区,打造森系生活、森氧景观、森感建筑,创造一个自然、健康、舒适的主城芯森境生活住区。
水韵相映,自然声声入耳,区隔内外空间。让自然、艺术、生命力与社区完美相融,给予生活无限美好。

森栖谧语会客园
近享绿意,密语自然,感受森境园林开放、融合的生命力,让居者的社交与品味在潜移默化间生长。

森间童趣游乐园
森间亲子活动空间,让童趣回归野趣,在探索自然中成长,时刻感受森系社区蓬勃向上的力量。

【森质细节:雕琢细节精致生活】
归家大堂以酒店式接待为蓝本,空间、材质及灯光多维度组合,内部枯山水与外部森氧园景对韵映照,艺术与生活完美融合,令到访者切身体验到归家的仪式感、自由感。

·地下车库精装双大堂
匠筑地库归家空间、休憩区,营造双入户大堂,连接住宅地上地下功能空间,凸显豪华与尊贵,高定生活从归家开始。

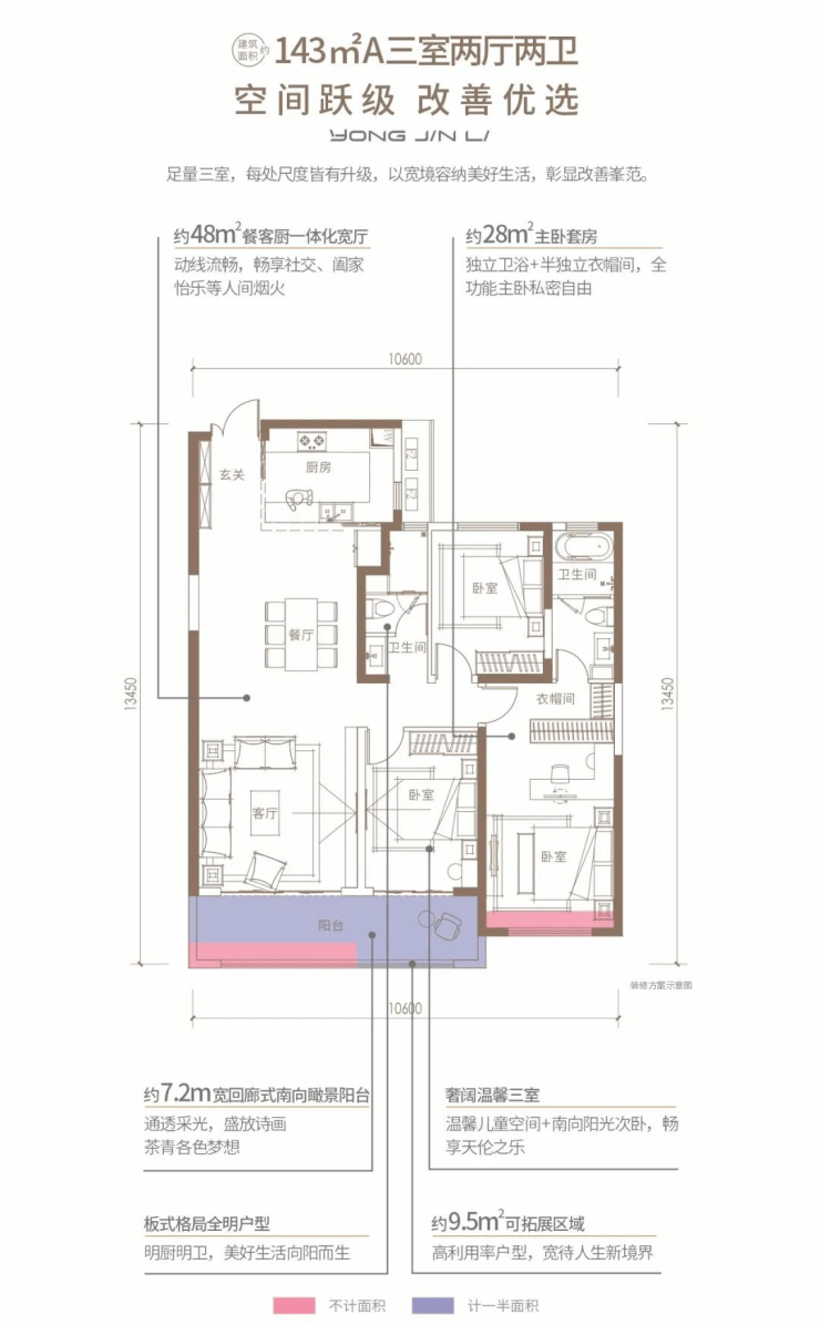
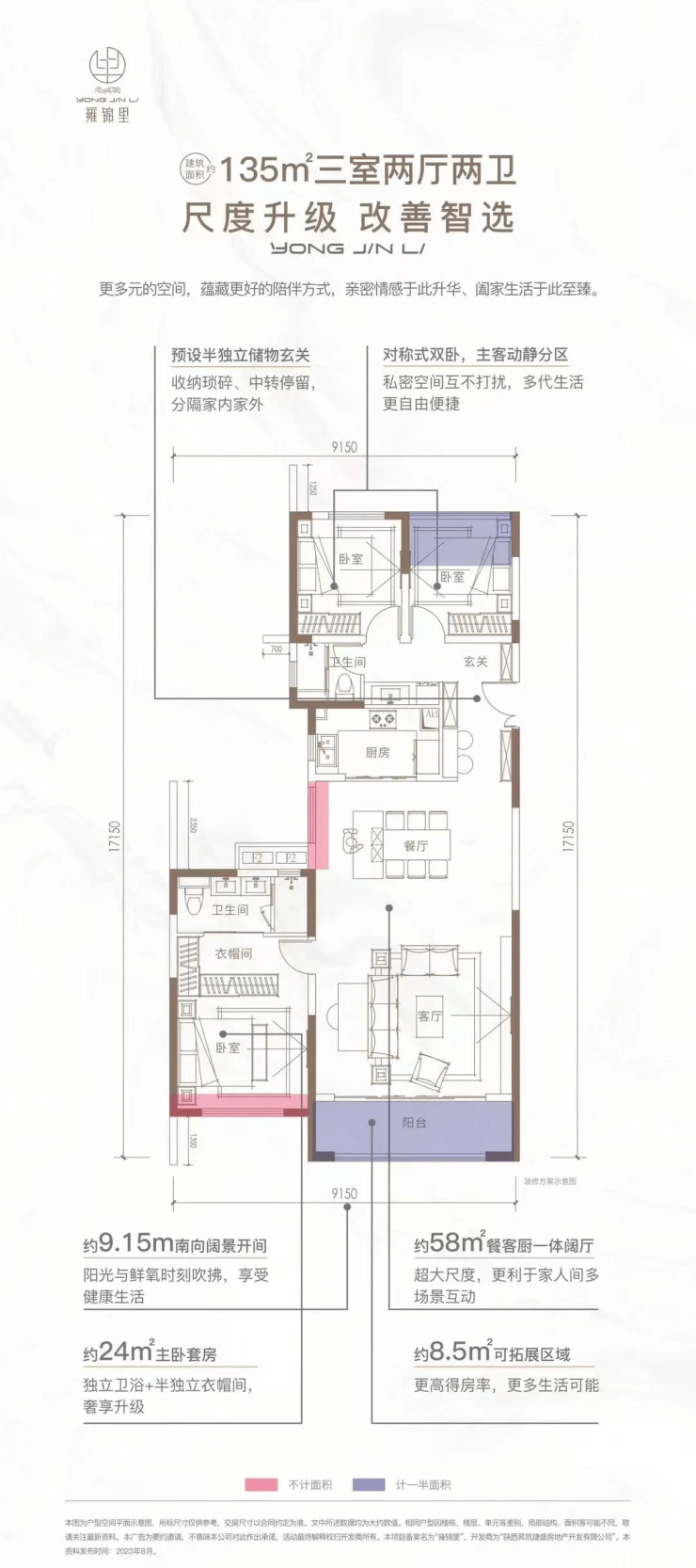
【宽奢人居:优改户型轻氧生活】
以匠心洞见进阶客群的改善需求,以典范户型助力人生进阶。


【老城根雍锦里】售楼处TEL: 029-88777723【售楼中心】

了解最新优惠折扣价格——请拨打售楼处
声明:本文由入驻焦点开放平台的作者撰写,除焦点官方账号外,观点仅代表作者本人,不代表焦点立场。
