高新三期 · 西安四腾科技园▁总建面▁车位充足▁低单价▁电梯
扫描到手机,新闻随时看
扫一扫,用手机看文章
更加方便分享给朋友
西安「西安四腾科技园」
售楼处:029-88866618(营销中心)
售楼部地址:029-88866618(致电发送详情地址)
如需了解最新房源信息_在售房源价格_请拨打上方售楼部电话!
高新三期 · 西安四腾科技园
西安四腾科技园为高新三期重点项目,项目总投资额5.2亿元,占地约48.6亩,总建筑面积约8万平方米。
项目由西安四腾企业集团旗下企业——西安四腾新技术有限公司投资建设,集团扎根西安高新区30年,是医用空气净化领域的行业龙头。
项目配套
西安四腾科技园坐落于西安高新技术开发区的核心地带,北依北斗路,西傍经二十八路,南邻纬二十六路,东至经二十六路。这里不仅是科技创新的摇篮,更是未来企业发展的热土。
交通:高新云轨(300m)、地铁15号线(700m)、地铁6号线(1.8km)
商业:永安渠商业、阳光新天地;项目自带1.5万㎡商业
生态:200亩城市绿地公园(50m)、永安渠海绵城市生态公园(1km)、大仁遗址公园(2.2km)
医疗:西安国际医学中心(1.8km)
产业:中交科技城、三星环动力电池、中航电测、陕西光电科学院、中国科学院西安光学 研究院、中国通讯建设、未来之瞳超高层建筑群...
总占地:48.6亩
总建面:8万㎡
土地性质:工业用地(2020年12月)
车位:560个(地下,均可安装充电桩),非机动车345个
荷载:首层500kg/㎡,标准层300kg/㎡
电梯:进口芬兰通力
交付标准:毛坯
天然气:入户
项目分为2期开发,目前3#、4#、5#在售,预计2024年7月交付。
在售产品
3# 可分割为东西两户销售,每户2342㎡
建筑面积:4684㎡
总高:5层
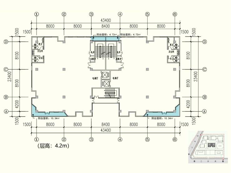
层高:首层、顶层5.1m,标准层4.2m
单层面积:约500㎡
4#-2单元 整栋出售
建筑面积:8212㎡
总高:8层
层高:首层4.5m,标准层3.9m
标准层面积:1078㎡
项目卖点
1.高新三期核心,距离管委会新址仅3km;
2.三地铁环绕,高新云轨、15号线近在咫尺,地铁6号线距离项目1.8km
3.项目1.5万㎡自持商业,大面积景观绿化+1250㎡水景,商业景观双配套,工作生活皆美好;
4.人车分流,车位充足;
5.花园独栋办公设计,低密度、高绿化,赠送楼顶花园、露台,企业总部的最佳选择彰显尊贵与实力;
6.偏心筒设计,户型方正,空间利用更自由、灵活;
7.零公摊,得房率超乎想象;
8.外立面采用石材+玻璃幕墙,大面积落地窗设计采光充足,办公环境更为舒适;
9.进口芬兰通力电梯入户,尊贵体验升级,提升企业的形象;
10.天然气入户,户内通上下水,办公接待两相宜;
11.自装空调,为企业节省运行成本;
12.低单价,高性价比,首付30%轻松起航。
项目实景
3#实拍
4#实拍
5#实拍
【高新三期 · 西安四腾科技园】租售中心TEL:029-88866618【租售中心】
了解最新优惠折扣价格——请拨打租售中心
声明:本文由入驻焦点开放平台的作者撰写,除焦点官方账号外,观点仅代表作者本人,不代表焦点立场。
