高科枫林九里|轩阅里商铺公示!-在售楼栋-责任国企-舒适三房-容积率
扫描到手机,新闻随时看
扫一扫,用手机看文章
更加方便分享给朋友
西安「高科|轩阅里」
售楼处:029-88777723(营销中心)
售楼部地址:029-88777723(致电发送详情地址)

小区情况
建筑类型:小高层
产权年限住宅:70年
容积率住宅:2.5
绿化率:35%
规划户数:756户
楼层状况:18-26F
物业管理费住宅:2.2元/m²/月
物业公司:西安高科物业服务管理有限公司
车位数:973
区域势能
择址城芯,赋新理想人居
高科·枫林九里丨轩阅里,位处西安高新三环内醇熟版块,立足丝路软件城生活服务中心区、高新区产城人融合的焦点片区,西承丝路软件城万亿级科创产业高地,东享高新一期二期繁华城景,集萃丰盛的教育、交通、商业、生态、医疗资源,标定繁华所向。

城市绿芯,公园簇拥诗意家
【公园近揽】高新悬浮公园、沣惠绿道、皂河生态景观带;
【城市绿芯】唐城墙遗址公园、昆明池遗址公园、西安人才公园。

还原森境生活方式
【都市森居,写意山水】轩阅里以“轩阅雲台”为主题,提炼中国山水画作自然形态及视觉构图,创新应用现代景观手法,打造层次丰富的自然森境花园。

【美学建筑】超前公建化立面风格,以米白色、灰色涂料相搭配,典雅配色呈现,刷新高新三环风景线。

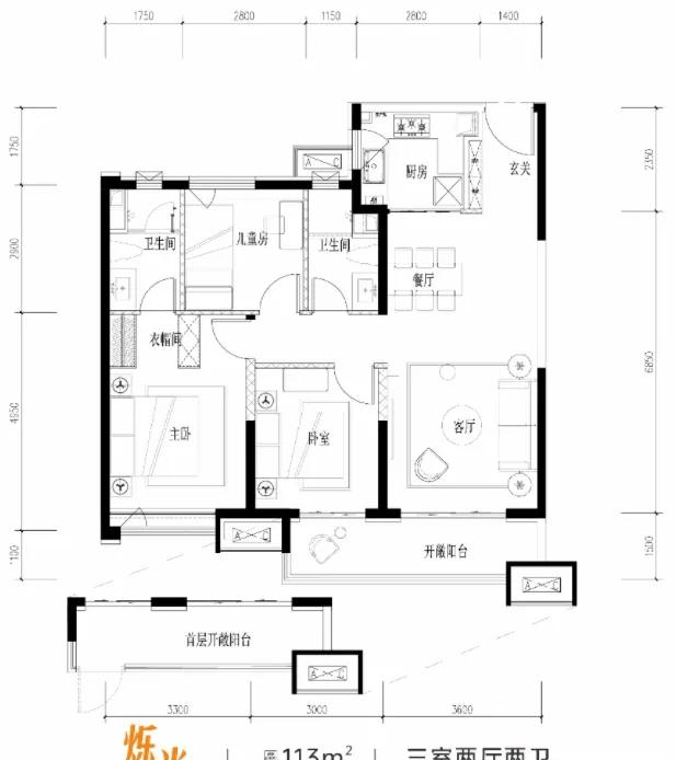
【舒适格局】
南北通透格局、餐客厨科学布局、流畅动线设计,主卧套房、双卫配置,晨洗晚漱更从容,极大提升舒适度;户户双卫配置,为一家人的晨起夜归更舒适、从容。


【高科|轩阅里】售楼处TEL:029-88777723【售楼中心】
了解最新优惠折扣价格——请拨打售楼处
声明:本文由入驻焦点开放平台的作者撰写,除焦点官方账号外,观点仅代表作者本人,不代表焦点立场。
