华润置地世园润府(租售中心)▁车位▁一房一价▁物业费▁建筑面积

搜狐焦点宝鸡站 2025-11-08 15:45:00
用手机看
扫描到手机,新闻随时看

扫一扫,用手机看文章
更加方便分享给朋友

西安华润置地世园润府售楼处提供详细信息,包括户型、价格、周边配套及物业情况,主打高绿化、一房一价第四代住宅。

西安「华润置地世园润府」

售楼处:029-88777792(营销中心)

售楼部地址:029-88777792(致电发送详情地址)

在售户型图丨项目详情介绍丨剩余房源丨项目周边配套丨详细在线解答

基本信息

楼盘名称:华润置地世园润府

产权年限住宅:70年

容积率住宅:2

绿化率:40%

规划户数:1949户

物业管理费住宅:3.2-4元/m²/月

物业公司:西安世园润盈置业有限公司

车位数:4203

车位比:1:2

楼盘特点:一房一价 第四代住宅 品牌开发商 公园 高绿化率

参考价格:23921元/m²

物业类型:住宅

开发商:西安世园润盈置业有限公司

区域位置:三环外- 浐灞国际港- 世园会

楼盘地址:世博园东侧,世博大道以南

周边配套:

教育

西安市浐灞第十九小学、爱华幼儿园(西安政物核段社区西北)、西安市第三十四中学、西安市灞桥区灞桥镇小学、金宸幼儿园(世博大道)、西安市八十三中学(浐灞分校)、纺织城小学灞柳分校、迎春花幼儿园、西安市浐灞第一中学、西安市浐灞第十八小学

交通

香湖湾(3号线)、灞桥收费站(西潼高速西南向)、世博园得宝门[公交站]、浐灞中心(3号线)、灞桥收费站(S3011绕城高速联络线东北向)、锻压厂[公交站]、务庄(3号线)、灞桥停车场[公交站]、一二四所[公交站]、锻压机床厂[公交站]

购物

百汇商业中心、西安华东购物广场、灞桥供销社供销商场、鲜都生活超市(纺渭路店)、香湖湾时代广场

楼盘

世园里、世园大公馆、上林艺境、香江湾、中铁琉森水岸、绿城桂语江南、云溪东境、中南樾府、世园林语、西安新天地金融中心(商业)

医疗

西安医学院第二附属医院(灞桥院区)、灞桥核锻社区卫生服务站预防接种门诊、方家村卫生室、西安市灞桥区人民医院、灞桥核锻社区卫生服务站、灞桥街卫生室、灞桥区红十字会医院、灞桥区灞桥第一社区卫生服务中心、读书村卫生室(核锻社区卫生服务站西北)、前海人寿医院

景观

灞桥生态湿地公园、西安千古情广场、灞河西岸滨河公园、灞桥街道办绿化健身广场、浐灞生态区汽车主题公园、北入口广场、香湖湾公园、灞柳西路3号小广场、西安尾水公园、灞柳西路2号小广场

生活

秦豫香早点、中国邮政储蓄银行(二一一小区)、中影 JMS国际影城(华东店)、顶美发型设计、娟子洗衣店、西安高新技师学院(浐灞校区)-操场、灞桥区畅阅书吧阅览室、美味川菜馆(灞桥堡路店)、秦农银行(读书村支行)、西安市灞桥区人民政府灞桥街道办事处公益电影放映点

交通状况:

香湖湾(3号线)、灞桥收费站(西潼高速西南向)、世博园得宝门[公交站]、浐灞中心(3号线)、灞桥收费站(S3011绕城高速联络线东北向)、锻压厂[公交站]、务庄(3号线)、灞桥停车场[公交站]、一二四所[公交站]、锻压机床厂[公交站]

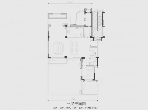
户型展示:

4室2厅2卫1厨, 143平米

3室2厅2卫1厨, 123平米

3室2厅2卫1厨, 123平米

4室2厅4卫1厨, 259平米

【华润置地世园润府】售楼处TEL:029-88777792【售楼中心】

了解最新优惠折扣价格——请拨打售楼处

声明:本文由入驻焦点开放平台的作者撰写,除焦点官方账号外,观点仅代表作者本人,不代表焦点立场。