高新三期 · 西安四腾科技园▁交付标准▁车位充足▁建筑面积▁总占地
扫描到手机,新闻随时看
扫一扫,用手机看文章
更加方便分享给朋友
西安「西安四腾科技园」
售楼处:029-88866618(营销中心)
售楼部地址:029-88866618(致电发送详情地址)
在售户型图丨项目详情介绍丨剩余房源丨项目周边配套丨详细在线解答
高新三期 · 西安四腾科技园
西安四腾科技园为高新三期重点项目,项目总投资额5.2亿元,占地约48.6亩,总建筑面积约8万平方米。
项目由西安四腾企业集团旗下企业——西安四腾新技术有限公司投资建设,集团扎根西安高新区30年,是医用空气净化领域的行业龙头。
项目配套
西安四腾科技园坐落于西安高新技术开发区的核心地带,北依北斗路,西傍经二十八路,南邻纬二十六路,东至经二十六路。这里不仅是科技创新的摇篮,更是未来企业发展的热土。
交通:高新云轨(300m)、地铁15号线(700m)、地铁6号线(1.8km)
商业:永安渠商业、阳光新天地;项目自带1.5万㎡商业
生态:200亩城市绿地公园(50m)、永安渠海绵城市生态公园(1km)、大仁遗址公园(2.2km)
医疗:西安国际医学中心(1.8km)
产业:中交科技城、三星环动力电池、中航电测、陕西光电科学院、中国科学院西安光学 研究院、中国通讯建设、未来之瞳超高层建筑群...
总占地:48.6亩
总建面:8万㎡
土地性质:工业用地(2020年12月)
车位:560个(地下,均可安装充电桩),非机动车345个
荷载:首层500kg/㎡,标准层300kg/㎡
电梯:进口芬兰通力
交付标准:毛坯
天然气:入户
项目分为2期开发,目前3#、4#、5#在售,预计2024年7月交付。
在售产品
3# 可分割为东西两户销售,每户2342㎡
建筑面积:4684㎡
总高:5层
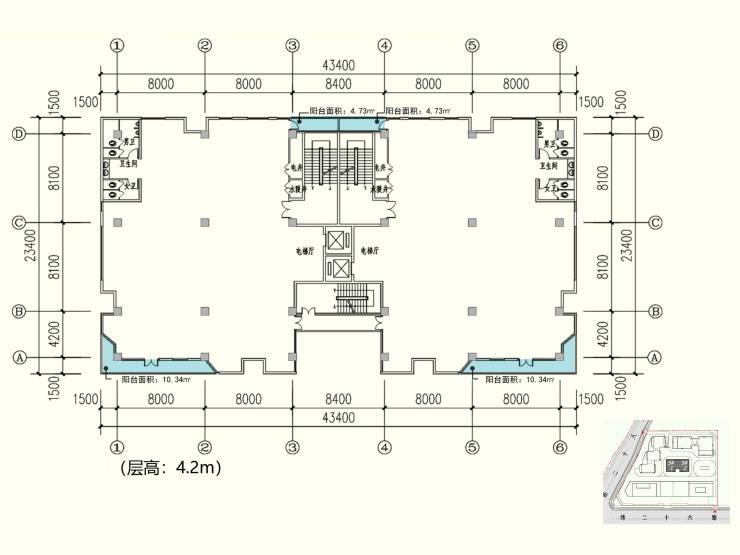
层高:首层、顶层5.1m,标准层4.2m
单层面积:约500㎡
4#-2单元 整栋出售
建筑面积:8212㎡
总高:8层
层高:首层4.5m,标准层3.9m
标准层面积:1078㎡
项目卖点
1.高新三期核心,距离管委会新址仅3km;
2.三地铁环绕,高新云轨、15号线近在咫尺,地铁6号线距离项目1.8km
3.项目1.5万㎡自持商业,大面积景观绿化+1250㎡水景,商业景观双配套,工作生活皆美好;
4.人车分流,车位充足;
5.花园独栋办公设计,低密度、高绿化,赠送楼顶花园、露台,企业总部的最佳选择彰显尊贵与实力;
6.偏心筒设计,户型方正,空间利用更自由、灵活;
7.零公摊,得房率超乎想象;
8.外立面采用石材+玻璃幕墙,大面积落地窗设计采光充足,办公环境更为舒适;
9.进口芬兰通力电梯入户,尊贵体验升级,提升企业的形象;
10.天然气入户,户内通上下水,办公接待两相宜;
11.自装空调,为企业节省运行成本;
12.低单价,高性价比,首付30%轻松起航。
项目实景
3#实拍
4#实拍
5#实拍
【高新三期 · 西安四腾科技园】租售中心TEL:029-88866618【租售中心】
了解最新优惠折扣价格——请拨打租售中心
声明:本文由入驻焦点开放平台的作者撰写,除焦点官方账号外,观点仅代表作者本人,不代表焦点立场。
