【营销中心】绿城桂月云翠—实景图现房—地铁沿线—楼盘介绍—商业街

搜狐焦点宝鸡站 2025-10-10 11:24:00
用手机看
扫描到手机,新闻随时看

扫一扫,用手机看文章
更加方便分享给朋友

绿城桂月云翠位于三环外,三房一价,配套成熟,2024年开盘,2026年交房,是奥体中心的高端住宅项目。

西安「绿城桂月云翠」

售楼处:029-88777792(营销中心)

售楼部地址:029-88777792(致电发送详情地址)

如需了解最新房源信息_在售房源价格_请拨打上方售楼部电话!

基本信息

楼盘名称:绿城桂月云翠

楼盘特点:一房一价 三环外 医院 商业街 配套纯熟

参考价格:17425元/m²

物业类型:住宅

开发商:西安鹏诚房地产开发有限公司

区域位置:三环外- 浐灞国际港- 奥体中心

楼盘地址:林泓路与奥体大道交会处

最新开盘:2024年12月5日

交房时间:2026年4月30日

售楼处地址:浐灞国际港林泓路与奥体大道交会处

绿化率:35%

规划户数:835户

工程进度:在建中,竣工时间:2026-04-30

绿城中国立高阶生活

绿城中国,理想生活综合服务商,29载美好深耕,坚持走“全品质、高质量、可持续”发展道路。连续19年荣获“中国房地产百强企业综合实力TOP10,连续13年在“中国城市居民居住满意度”调查中荣获佳绩,连续11年荣获中国房地产顾客满意度领先品牌”

七载深耕桂冠荣耀加冕

绿城与西安偕行7载,29盘并耀红动一城,连续2年登顶西安房企销售额、销售面积双料TOP1。

2017年绿城首入西安巨制千亩大盘全运村,五次斩获奥体成交金额,成交套数、成交面积三冠王,实力加冕桂冠荣耀。

2024年桂冠全维升级之作,于奥体价值金线之上点晴“都市的翡翠”

七载深耕桂冠荣耀加冕

屡次创下“千人摇号”市场热度

千亩大盘之势标定奥体繁华之芯

绿城西安全运村8566户提前交付

连续三年稳居西安城市居民居住满意度TOP1

五年稳居港务区房企业绩TOP1

时代再后璀璨城市未来

2024年浐灞国际港成立,国策带动之下双区合并,优势互补、配套共建引领城市价值跃升,当前体量扩容、人口聚集,已然跃居西安第三大开发区。以奥体三中心为核、总部集群势成、地标聚集的璀璨奥体,成为东部新中心上的一颗时代翡翠

西安在走向国际化的时代背景下,浐灞国际港正式成为西安城市的东部新中心,承担着扩大对内对外开放、打造内陆改革开放高地的战略角色,发挥着北跨发展的战略支点作用。

交通方面:绿城桂月云翠位于林泓路与奥体大道交会处。地铁3号线,在建中的10号线,双地铁坐镇,对于通勤一族而言,未来多线换乘,可以高效通达;

商业方面:绿城桂月云翠位于奥体板块以北,区域内商业配套也在快速完善中,据悉,板块内的王府井购物综合体、水晶汇溪广场、中粮大悦广场等大型商业预计今年开业。

教育方面:项目东侧一路之隔是正在建设中的交大附中陆港第四学校,设小学48个教学班,初中48个教学班。据悉,该学校将于2025年建成投用。此外,周边还有2023年已经投入使用的西安国际港务区陆港第七小学。(注:孩子具体能上哪所学校,需要在交房后由政府部门划分)。

流翠艺阁雅奢下沉会所

下沉会所庭院以“雅”为精神内核,配置健身房、瑜伽、茶室、棋牌室、儿童乐园等复合空间,邻里美好交互地下归家门厅升级为星幕光厅,温暖点亮归家之旅。

翡翠灵感通透流立面

建筑设计取质地出众的翡翠形态,高级灰+香槟金跳色,大尺度窗墙比,形成通透流荧的建筑感官,独具昭示性点亮城市界面。

超2万方实景生活服务空间及下沉庭院会所。下沉会所庭院以“雅”为精神内核,配置健身房、瑜伽、茶室、棋牌室、儿童乐园等复合空间,邻里美好交互地下归家门厅升级为星幕光厅。

东方宫制山水园林,纯粹2梯2户小高层,可覆土种植的四代住宅空中露台。约36米屋檐,7.9米挑高门厅,融合酒店式落客前场、高门台基,多重水境、高端石材与名贵树种,塑造层层叠翠归家仪式。

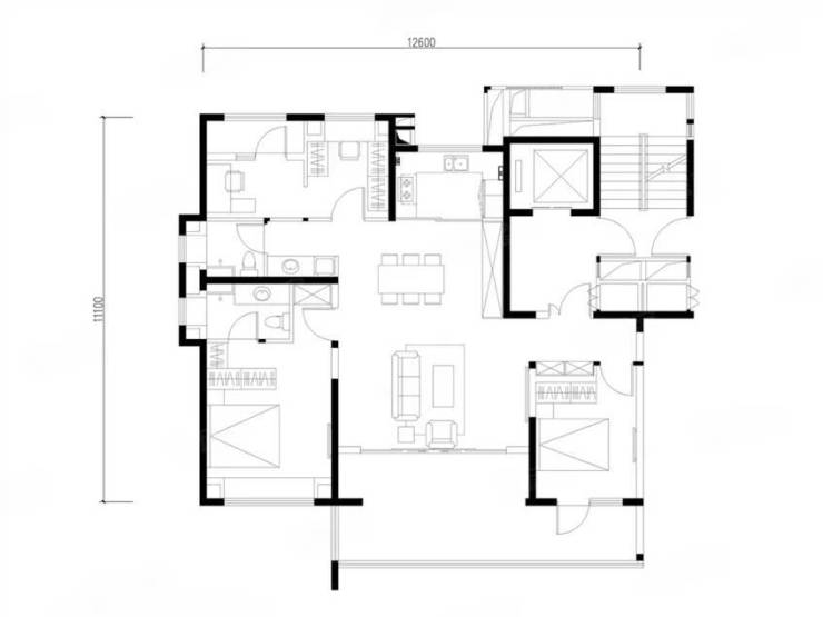
户型鉴赏

134平奇数4室2厅2卫

134平偶数4室2厅2卫

120平偶数3室2厅2卫

109平偶数3室2厅2卫

 【绿城桂月云翠】售楼处TEL:029-88777792【售楼中心】

了解最新优惠折扣价格——请拨打售楼处

声明:本文由入驻焦点开放平台的作者撰写,除焦点官方账号外,观点仅代表作者本人,不代表焦点立场。