唐樾六和坊商铺→容积率→交房信息→位置图→环境
扫描到手机,新闻随时看
扫一扫,用手机看文章
更加方便分享给朋友
西安「唐樾六和坊」
服务热线:029-68866626(咨询中心)
项目地址:029-68866626(致电发送详情地址)

基本信息
楼盘名称:唐樾六和坊 在售
建筑类型:小高层
产权年限住宅:70年
容积率住宅:2.9
绿化率:40%
规划户数:756户 (总户数756户 当期户数144户)
楼层状况:二环内纯板式小高层,由10栋18层小高层组成
物业管理费住宅:1.5元/m²/月
车位数:695
车位比1:1
楼盘特点:一房一价 二环内 配套纯熟 公园 购物中心
参考价格:16900元/m²
物业类型:住宅
开发商:陕西西瑞房地产开发有限责任公司
区域位置:二环内- 未央区- 大明宫
楼盘地址:大明宫遗址公园东侧1000米(太元路中段)
【项目区位】
唐樾六和坊,位于未央区御井路158号(大明宫遗址公园东侧1000米),项目总占地约50亩,建筑面积约10万平方米,由10栋18层小高层组成,总共分4期开发,一期(8、9、10号楼)和二期(6、7号楼)已于2014年交付入住,本次推售三期(2、4、5号楼),四期(1、3号楼)目前还在规划中。

项目位于曲江大明宫遗址保护区,二环内太华路商圈。东临浐灞生态区、西接大明宫遗址公园、南瞰曲江新区、北邻经济技术开发区,区域内各项配套均已完善。
【项目配套】
1、交通:道路方面,项目北临北二环,东临东二环两大主干道,西边临近太和路,南邻太元路,东西南北四条干道均为该片区的的重要道路,自驾非常方便;近距地铁3号线(辛家庙站),约15分钟畅达曲江、浐灞、高铁站;约30分钟快速接驳高新;周边享有30余条公交线路,互联西安市各个区域。
2、教育:自配有唐樾乐高幼儿园,周边东前进小学、后宰门小学,太元路小学等,涵盖一站式优质教育资源,铺就菁英成才之路。


3、医疗:三甲西京医院、二甲唐城医院、北环医院、陕健医西安煤机医院等,权威医疗资源环伺,24小时呵护全家健康生活。

4、商业:百寰国际易达·生活中心、万达广场、UPARK悦邻荟、四海唐人街、大明宫购物中心等,成熟商圈云集,包罗生活万象精彩。

5、公园:西邻5400亩5A级景区大明宫遗址公园;南倚东元公园;东近桃花潭公园。三大公园环绕,私享城市低密森氧后花园。

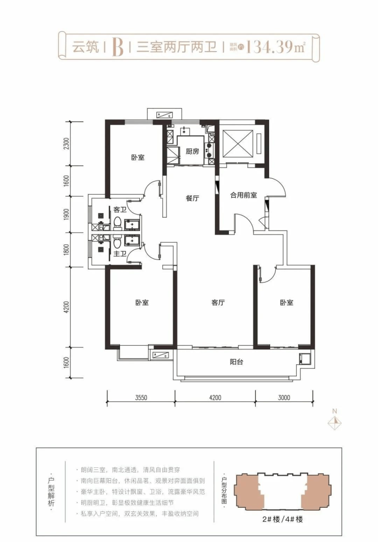
【户型赏析】


【唐樾六和坊】服务热线TEL:029-68866626 【咨询中心】
了解最新优惠折扣价格——请拨打服务热线
声明:本文由入驻焦点开放平台的作者撰写,除焦点官方账号外,观点仅代表作者本人,不代表焦点立场。
